Valutazione immobiliare indipendente, accurata e gratuita
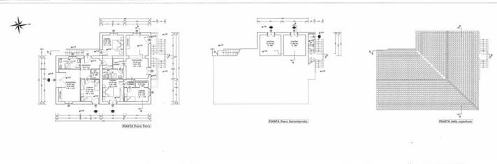
Negozio in vendita a Rosignano Marittimo in zona Castiglioncello a 230.000 € (cod.64b08941)
Caasa non ha sufficienti informazioni per commentare il negozio a Rosignano Marittimo Castiglioncello - 64b08941.
Analisi immobiliare
I dati in posseso di Caasa per quest'immobile sono insufficienti, inaffidabili o contraddittori per proporre un'analisi attendibile.
Mercato immobiliare a Rosignano Marittimo
Per quanto riguarda più in generale la città di Rosignano Marittimo, sono presenti al momento più di 300 annunci per
negozi in vendita (quasi il 20% dell'intera provincia)
e il maggior numero di annunci per questa tipologia sono relativi alla zona di Rosignano Solvay, mentre nella zona di Castiglioncello è presente un numero significativamente inferiore di annunci.
Vedi altre informazioni direttamente su
Mercato-Immobiliare.info
NOVITÀ Il risultato che vedi dipende dai dati che siamo riusciti ad estrarre dall'annuncio: ottieni una stima più accuranta di questo immobile, inserendo dati più precisi.
N.B. L'Opinione di Caasa® è un servizio sperimentale realizzato tramite tecniche di Intelligenza Artificiale, fornito senza alcuna garanzia di correttezza e completezza. Leggi il disclaimer o segnalaci un problema.
IMMAGINI
IN SINTESI
PROPOSTO DA:
IMMOBILIARE EMMEQUADRO
