Valutazione immobiliare indipendente, accurata e gratuita
Casa indipendente in vendita a Piombino a 285.000 € (cod.65651522)
Caasa non ha sufficienti informazioni per commentare la casa indipendente in vendita a Piombino - 65651522.
Analisi immobiliare
I dati in posseso di Caasa per quest'immobile sono insufficienti, inaffidabili o contraddittori per proporre un'analisi attendibile.
Mercato immobiliare a Piombino
Per quanto riguarda più in generale la città di Piombino, sono presenti al momento oltre 500 annunci per
case indipendenti in vendita (meno del 10% dell'intera provincia)
e il maggior numero di annunci per questa tipologia sono relativi alla zona di Baratti.
Possiamo inoltre considerare che in tutta la città negli ultimi 6 mesi, i prezzi per case indipendenti in vendita sono
sostanzialmente stabili (-0,41%).
NOVITÀ Il risultato che vedi dipende dai dati che siamo riusciti ad estrarre dall'annuncio: ottieni una stima più accuranta di questo immobile, inserendo dati più precisi.
N.B. L'Opinione di Caasa® è un servizio sperimentale realizzato tramite tecniche di Intelligenza Artificiale, fornito senza alcuna garanzia di correttezza e completezza. Leggi il disclaimer o segnalaci un problema.
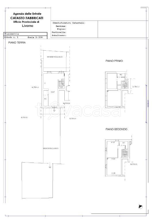
IMMAGINI
IN SINTESI
PROPOSTO DA:
FLORENCEREALESTATE DI LAPINI ANDREA
Via della Condotta, 12, Firenze (FI)
Verificata da Caasa®
DESCRIZIONE
di recente ristrutturazione con giardino con posto auto di recente ristrutturazione
Terratetti in vendita a Panconcello - Un Angolo di Paradiso! Scopri la tua oasi di tranquillità a Panconcello, proprietà immerse nella natura e a pochi minuti dal mare! Questi incantevoli appartamenti, dal più piccolo di tre ampi vani di circa 87 mq posto al piano terreno con circa 800 mq di giardino circostante all’immobile, al più grande di 5 vani su tre livelli, di circa 170 mq con due bagni e doppio giardino di circa 150 mq, (posto sul fronte e sul retro dell’abitazione), gli immobili sono stati completamente ristrutturati e sono, perfetti per vivere in totale comfort. I giardini privati sono ideali per momenti di relax all'aria aperta o per organizzare cene con amici e familiari. La posizione strategica ti permette di raggiungere facilmente le splendide spiagge del Parco della Sterpaia e della Costa Est. Gli appartamenti, situati in terratetto con giardino e posti auto, sono dotati di aria condizionata e travi a vista, per un'atmosfera calda e accogliente. Inoltre, vi è il recupero fiscale che può arrivare fino a 48.000 euro, rendendo questa offerta ancora più interessante! Vivi in un piccolo borgo riqualificato, circondato da strutture immerse nel verde, ma con tutti i servizi a portata di mano. Non perdere l'occasione di possedere un immobile nella meravigliosa campagna di Panconcello! La Distanza dal mare è a pochi minuti in auto dalle spiagge del Parco della Sterpaia e della Costa Est (come Carlappiano o Carbonifera). La posizione rurale riqualificata, spesso descritta come un piccolo borgo vicino alla costa. La località è nota per ospitare strutture immerse nel verde che offrono tranquillità pur rimanendo molto vicine ai servizi e al mare (dalla costa principale). Contattaci per maggiori informazioni e per prenotare una visita

