Valutazione immobiliare indipendente, accurata e gratuita
L'Opinione di Caasa® per la casa indipendente in vendita a Marciana a 495.000 € (cod.64e2d4b6)
Secondo Caasa, per la casa indipendente in vendita a Marciana, la richiesta di 495.000 € è significativamente vantaggiosa rispetto agli annunci simili.
Analisi immobiliare
La casa indipendente, situata nella zona OMI D2, è proposta in vendita (da IMMOBILELBA.IT A F) a
495.000 € per una
superficie commerciale di
170 m² e quindi ad un prezzo per metro quadrato pari a
2911 €/m²
.
Questo prezzo
è più vantaggioso di quello stimato da Caasa per immobili in vendita simili per tipologia, caratteristiche, classe energetica e zona, che è compreso tra
3.851 €/m² e
4.345 €/m².
Data la posizione della casa indipendente si sono utilizzati in raffronto i valori medi nelle zone limitrofe . Ad affinare la stima ha contribuito anche la classe energetica (G) oltre alla conoscenza di alcune caratteristiche significative come il garage. In virtù di queste considerazioni è possibile ottenere un intervallo di valori accettabili per l'offerta relativamente limitato.
Mercato immobiliare a Marciana
Per quanto riguarda più in generale il comune di Marciana, sono presenti al momento più di 200 annunci per
case indipendenti in vendita (meno del 5% dell'intera provincia) .
Possiamo inoltre considerare che in tutto il comune negli ultimi 6 mesi, i prezzi per case indipendenti in vendita sono
sostanzialmente stabili (+0,76%).
NOVITÀ Il risultato che vedi dipende dai dati che siamo riusciti ad estrarre dall'annuncio: ottieni una stima più accuranta di questo immobile, inserendo dati più precisi.
N.B. L'Opinione di Caasa® è un servizio sperimentale realizzato tramite tecniche di Intelligenza Artificiale, fornito senza alcuna garanzia di correttezza e completezza. Leggi il disclaimer o segnalaci un problema.
IMMAGINI
IN SINTESI
DESCRIZIONE
con giardino con terrazza con posto auto con garage
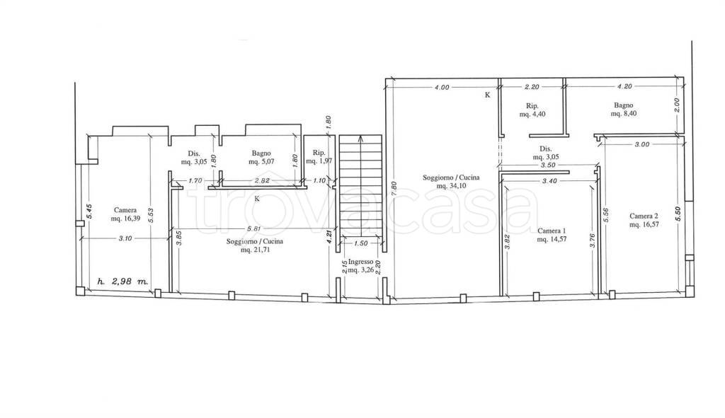
Proponiamo in vendita questo spazioso immobile nella rinomata zona di Sant'Andrea, attualmente adibito a uso commerciale, in cui è possile fare un cambio di destinazione d'uso per trasformarlo in una casa singola, oppure in due appartamenti indipendenti, come disegnato nella planimetria allegata. Questa proprietà di 170 mq si sviluppa interamente al piano terra e offre un'ampia superficie, ed ampie aperture vetrate con una splendida vista sul golfo di Sant'Andrea. Non dispone di giardino ma di terrazza sul tetto, e di n. 2 posti auto. E' eventualmente possibile acquistare anche ulteriori posti auto. Immobile ideale per investimento e messa a reddito. Classe Energetica: G



