Valutazione immobiliare indipendente, accurata e gratuita
L'Opinione di Caasa® per l'appartamento in vendita a Cecina a 400.000 € (cod.6564b75d)
Secondo Caasa, per l'appartamento in vendita a Cecina, la richiesta di 400.000 € è significativamente vantaggiosa rispetto agli annunci simili.
Analisi immobiliare
L'appartamento, situato nella zona OMI D9, è proposto in vendita a
400.000 € per una
superficie commerciale di
100 m² e quindi ad un prezzo per metro quadrato pari a
4000 €/m²
.
Tale prezzo
è più conveniente di quello stimato da Caasa per immobili in vendita simili per tipologia, caratteristiche, classe energetica e zona, che è compreso tra
4.656 €/m² e
4.934 €/m².
Presa in considerazione la posizione dell'appartamento si sono utilizzati in raffronto i valori medi nelle zone limitrofe . Ad affinare la stima ha contribuito anche la classe energetica (A+) oltre alla conoscenza dello stato dell'immobile (di nuova costruzione) e di alcune caratteristiche significative come il garage, la disponibilità di una cantina o la climatizzazione. Per queste ragioni i valori accettabili per l'offerta costituiscono un intervallo relativamente limitato.
Mercato immobiliare a Cecina
Per quanto riguarda più in generale la città di Cecina, sono presenti al momento ben oltre mille annunci per
appartamenti in vendita (quasi il 20% dell'intera provincia) .
Relativamente alla dinamica dei prezzi, possiamo dire che negli ultimi 6 mesi i prezzi medi in tutta la città per appartamenti in vendita sono
in aumento (+3,67%).
NOVITÀ Il risultato che vedi dipende dai dati che siamo riusciti ad estrarre dall'annuncio: ottieni una stima più accuranta di questo immobile, inserendo dati più precisi.
N.B. L'Opinione di Caasa® è un servizio sperimentale realizzato tramite tecniche di Intelligenza Artificiale, fornito senza alcuna garanzia di correttezza e completezza. Leggi il disclaimer o segnalaci un problema.
IMMAGINI
IN SINTESI
PROPOSTO DA:
TUSCANIA Agenzia Immobiliare
DESCRIZIONE
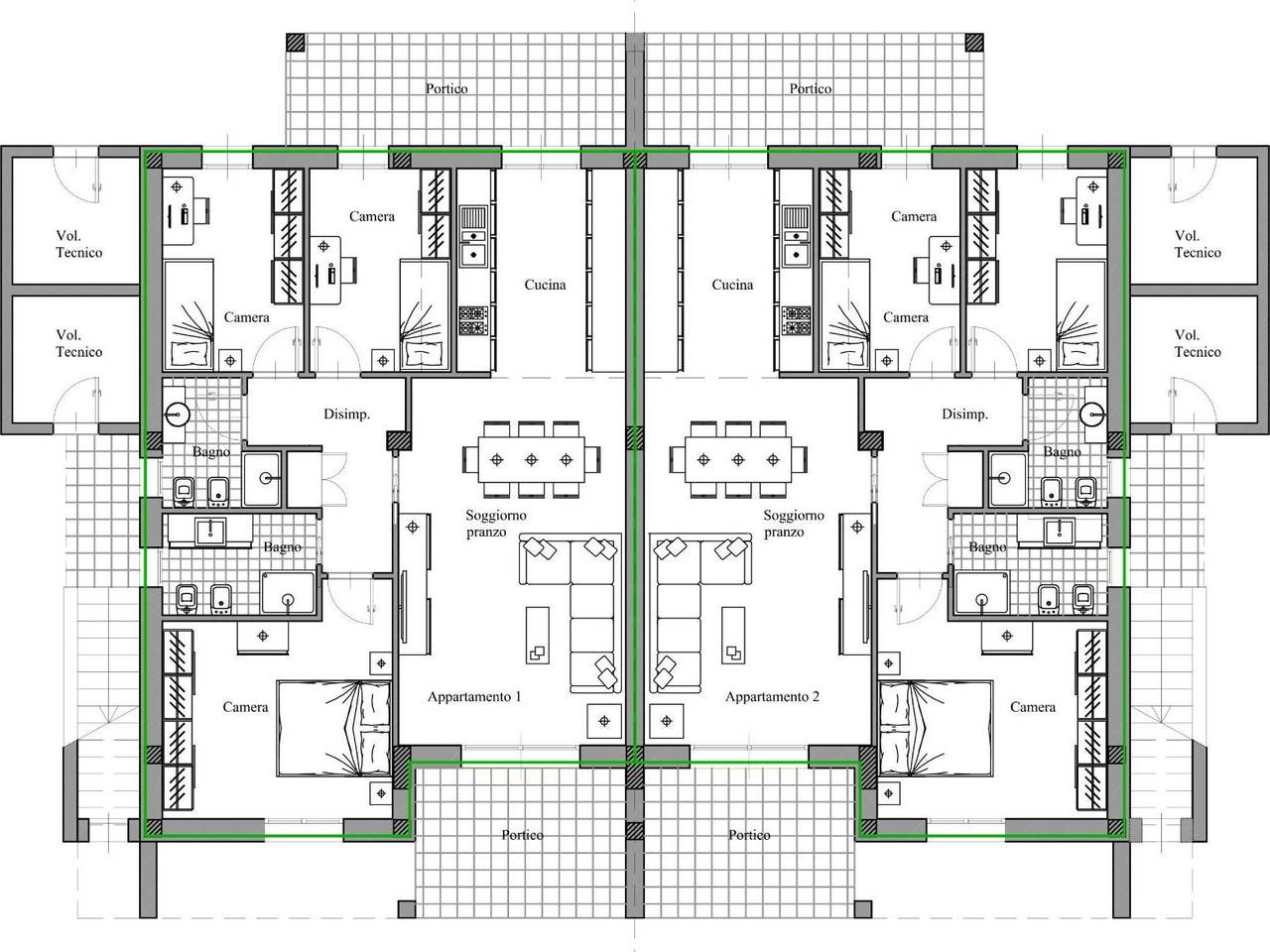
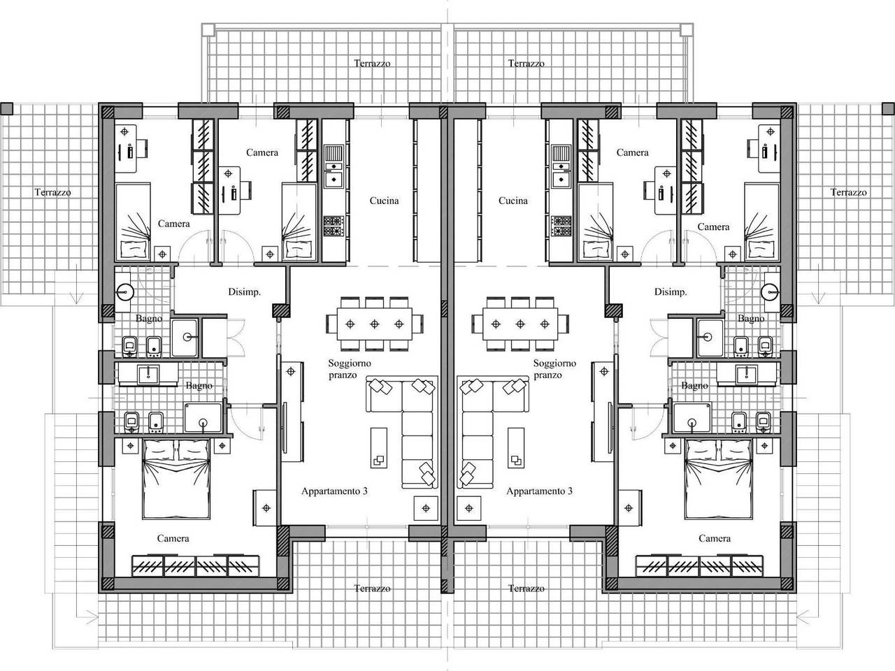
di nuova costruzione con posto auto con terrazza con giardino con garage con cantina di nuova costruzione con climatizzazione
Cod.01216 Rif.Ag. 6 - Cecina Marina: Vendesi appartamenti di nuova realizzazione all'interno di un nuovo contesto di moderna Lottizzazione, dove troviamo parcheggi, spazi verdi, piste ciclabili e percorsi pedonali che permettono di raggiungere comodamente il mare e il centro città. Gli appartamenti sono INDIPENDENTI, con giardini in proprietà Esclusiva, oltre a n.2 posti auto e locale ripostiglio al piano terreno. Il fabbricato è composto da appartamenti di 100 mq - con 2 unità al piano terreno e 2 unità al piano primo. E' possibile ampliare la superficie fino a 125 mq. Oppure realizzare un Trilocale di 75 mq. La soluzione al PIANO TERRENO ha il giardino d'ingresso, il porticato, con vetrata di accesso al soggiorno + cucina con uscita sul secondo portico e giardino sul retro completo di veranda, oltre a reparto notte con tre camere e doppi servizi. Al PIANO PRIMO si accede da scala esterna, passando per la comoda terrazza, con entrata in soggiorno per proseguire in cucina - pranzo, completa di terrazza. Il reparto notte, è composto da disimpegno, bagno di servizio e ripostiglio, tre camere, secondo bagno e due terrazze. Le caratteristiche costruttive e l'ottimo capitolato, oltre agli impianti di ultima generazione (pannelli fotovoltaici, pompe di calore, ecc) faranno sì di poter realizzare immobili con alte prestazioni Energetiche, vicini al fabbricato passivo. La consegna sarà per Giugno 2026. VI ASPETTIAMO IN AGENZIA PER PROPORVI TUTTE LE SOLUZIONI NEI LORI DETTAGLI. In questa fase è possibile apportare modiche alla superficie degli appartamenti e personalizzare degli interni (ad esempio: ampliare la zona giorno e realizzare 2 camere matrimoniali). Prezzo € 400.000 (il prezzo è riferito alla superficie standard di mq 100). Le alternative di mq 75 o mq 125 sono visibili nelle ultime quattro soluzioni inserite nella parte dedicata alle Planimetrie. Rif. 6 - Per qualsiasi chiarimento contattare il 335 6111829 Massimo







