Valutazione immobiliare indipendente, accurata e gratuita
L'Opinione di Caasa® per la casa indipendente in vendita a Cecina a 345.000 € (cod.6563bb3e)
Secondo Caasa, per la casa indipendente in vendita a Cecina, la richiesta di 345.000 € è equilibrata rispetto agli annunci simili.
Analisi immobiliare
La casa indipendente, situata nella zona OMI B5, è proposta in vendita (da AGENZIA IMMOBILIARE EUROPA DI GATTAI GOFFREDO) a
345.000 € per una
superficie commerciale di
120 m² e quindi ad un prezzo per metro quadrato pari a
2875 €/m²
.
Questo prezzo
è molto vicino a quello stimato da Caasa per immobili in vendita simili per tipologia, caratteristiche, classe energetica e zona, che è compreso tra
2.641 €/m² e
2.928 €/m².
Data la posizione della casa indipendente si sono utilizzati in raffronto i valori medi nelle zone limitrofe . Ad affinare la stima ha contribuito anche la classe energetica (G) oltre alla conoscenza di alcune caratteristiche significative come il garage. Per queste considerazioni è possibile ottenere un intervallo di valori accettabili per l'offerta relativamente limitato.
Mercato immobiliare a Cecina
Per quanto riguarda più in generale la città di Cecina, sono presenti al momento oltre 500 annunci per
case indipendenti in vendita (quasi il 20% dell'intera provincia) .
Possiamo inoltre considerare che in tutta la città negli ultimi 6 mesi, i prezzi per case indipendenti in vendita sono
in debole aumento (+2,04%).
NOVITÀ Il risultato che vedi dipende dai dati che siamo riusciti ad estrarre dall'annuncio: ottieni una stima più accuranta di questo immobile, inserendo dati più precisi.
N.B. L'Opinione di Caasa® è un servizio sperimentale realizzato tramite tecniche di Intelligenza Artificiale, fornito senza alcuna garanzia di correttezza e completezza. Leggi il disclaimer o segnalaci un problema.
IMMAGINI
IN SINTESI
PROPOSTO DA:
AGENZIA IMMOBILIARE EUROPA DI GATTAI GOFFREDO
PIAZZA GARIBALDI 76, Rosignano Marittimo (LI)
Verificata da Caasa®
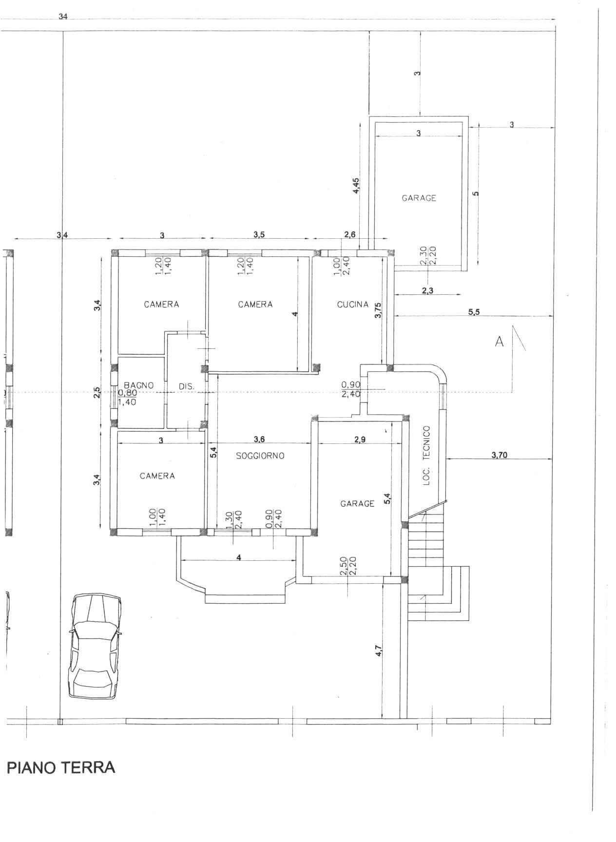
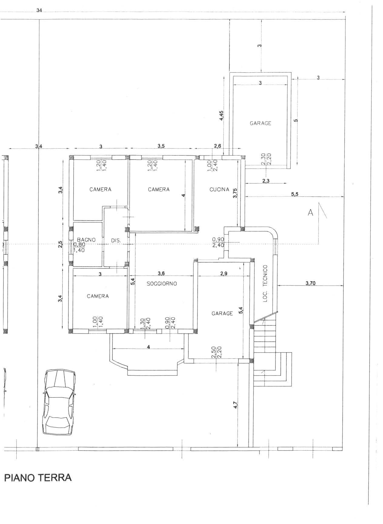
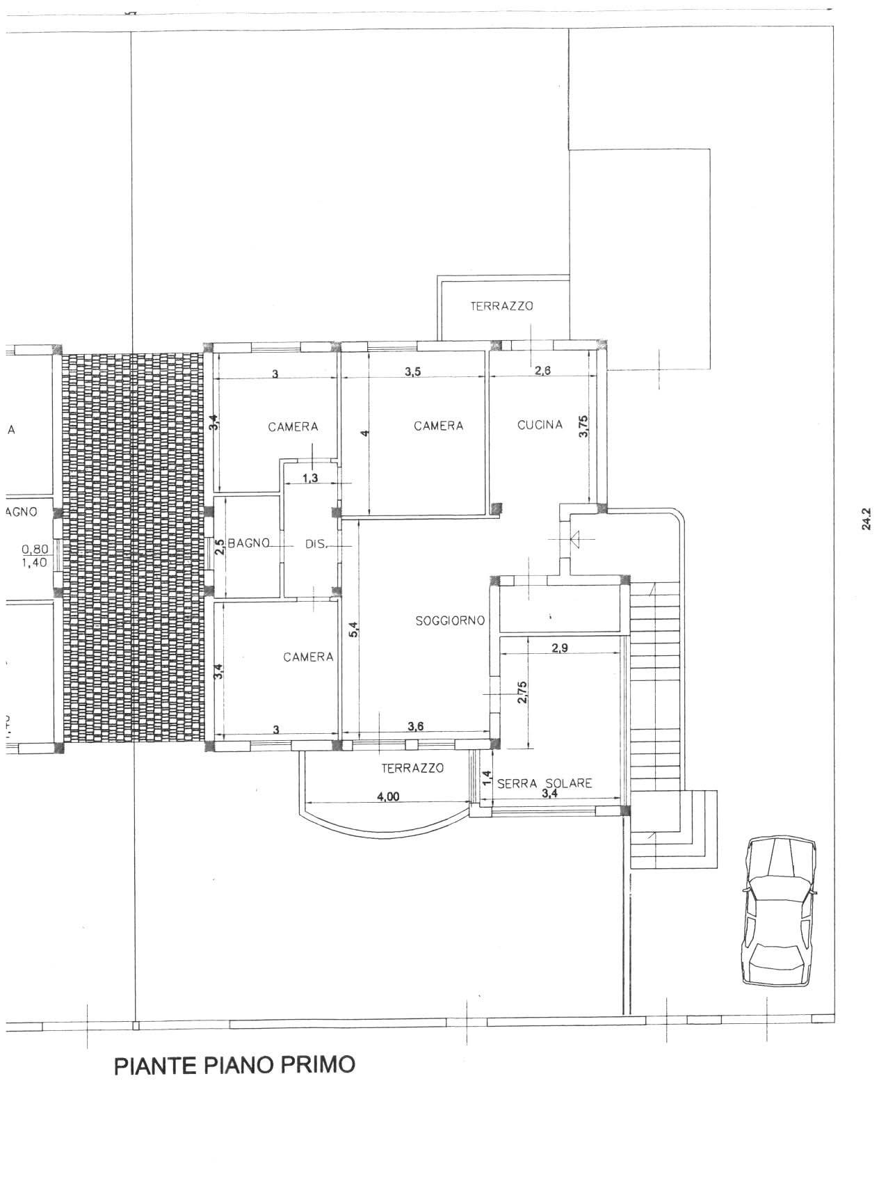
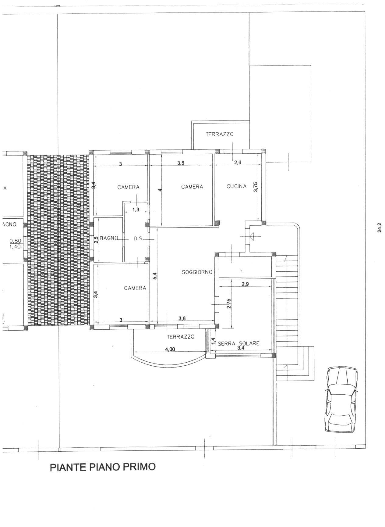
DESCRIZIONE
con posto auto con giardino con terrazza con garage con termocondizionamento con cucina abitabile con riscaldamento autonomo
Rif.Ag. papa - Cecina periferia sud in villa quadrifamiliare, appartamenti modello villetta con giardini indipendenti e terrazza abitabili massimo coeficente energetico, tutte le ultime novità in base alle normative di costruzione, appartamenti indipendenti piano terra o piano primo, composti da cucina abitabile ,tre camere ,doppi servizi, serre solari ,garage- Pagamento in avanzamento lavori- Nessuna spesa condominiale- Possibiltà di permuta con il vostro appartamento usato- Disponibile un piano terra di mq 86 composto da ampio portico d'ingresso, soggiorno, cucina abitabile, una camere matrimoniale e due camerine, bagno più un locale tecnico nel quale è possibile realizzare un secondo bagno, giardino di 160 mq e garage. - SC9284272



