Valutazione immobiliare indipendente, accurata e gratuita
Appartamento in vendita a Cecina a 300.000 € (cod.651e53a0)
Caasa non ha sufficienti informazioni per commentare l'appartamento in vendita a Cecina - 651e53a0.
Analisi immobiliare
I dati in posseso di Caasa per quest'immobile sono insufficienti, inaffidabili o contraddittori per proporre un'analisi attendibile.
Mercato immobiliare a Cecina
Per quanto riguarda più in generale la città di Cecina, sono presenti al momento ben oltre mille annunci per
appartamenti in vendita (quasi il 20% dell'intera provincia) .
Per quanto riguarda la dinamica dei prezzi, negli ultimi 6 mesi i prezzi medi in tutta la città per appartamenti in vendita sono
in debole aumento (+1,96%).
NOVITÀ Il risultato che vedi dipende dai dati che siamo riusciti ad estrarre dall'annuncio: ottieni una stima più accuranta di questo immobile, inserendo dati più precisi.
N.B. L'Opinione di Caasa® è un servizio sperimentale realizzato tramite tecniche di Intelligenza Artificiale, fornito senza alcuna garanzia di correttezza e completezza. Leggi il disclaimer o segnalaci un problema.
IMMAGINI
IN SINTESI
PROPOSTO DA:
TUSCANIA Agenzia Immobiliare
DESCRIZIONE
con posto auto con giardino con cantina con garage con angolo cottura con balcone con termocondizionamento senza ascensore
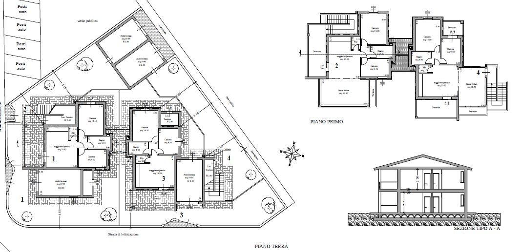
Cecina: nella periferia del paese, vendesi soluzione al piano terra in Bifamiliare. Al piano Terreno, Trilocale di 67 mq, composto da soggiorno con angolo cottura, Portico di 14 mq, ripostiglio, disimpegno, bagno, camera matrimoniale, camera singola, locale tecnico, giardino di 120 mq, garage di 25 mq. Prezzo € 290.000 Il fabbricato verrà realizzato con Ottimo capitolato, con materiali di ultima generazione a livelli di tamponamenti, infissi, impianti, con presenza di fotovoltaico, riscaldamento a pavimento, caratteristiche che permetteranno di raggiungere i massimi livelli di prestazione energetica. Classe energetica prevista A4. Rif. 78








