Valutazione immobiliare indipendente, accurata e gratuita
Appartamento in vendita a Sorano in zona San Quirico a 189.000 € (cod.65990c0d)
Caasa non ha sufficienti informazioni per commentare l'appartamento a Sorano in zona San Quirico - 65990c0d.
Analisi immobiliare
I dati in posseso di Caasa per quest'immobile sono insufficienti, inaffidabili o contraddittori per proporre un'analisi attendibile.
Mercato immobiliare a Sorano
Per quanto riguarda più in generale il comune di Sorano, sono presenti al momento più di 200 annunci per
appartamenti in vendita (meno del 5% dell'intera provincia)
e il maggior numero di annunci per questa tipologia sono relativi proprio alla zona di San Quirico.
La richiesta media nella zona dove sorge l'appartamento (San Quirico) è pari a
1.170 €/m², molto vicina ai valori della zona Elmo che sono i più alti del comune .
Relativamente alla dinamica dei prezzi, possiamo dire che negli ultimi 6 mesi i prezzi medi in tutto il comune per appartamenti in vendita sono
in sostanziale calo (-5,29%).
NOVITÀ Il risultato che vedi dipende dai dati che siamo riusciti ad estrarre dall'annuncio: ottieni una stima più accuranta di questo immobile, inserendo dati più precisi.
N.B. L'Opinione di Caasa® è un servizio sperimentale realizzato tramite tecniche di Intelligenza Artificiale, fornito senza alcuna garanzia di correttezza e completezza. Leggi il disclaimer o segnalaci un problema.
IMMAGINI
IN SINTESI
PROPOSTO DA:
INTERMEDIA PROGETTI DI ALESSIO GHIRIBELLI
DESCRIZIONE
di recente ristrutturazione di recente ristrutturazione con angolo cottura di recente costruzione
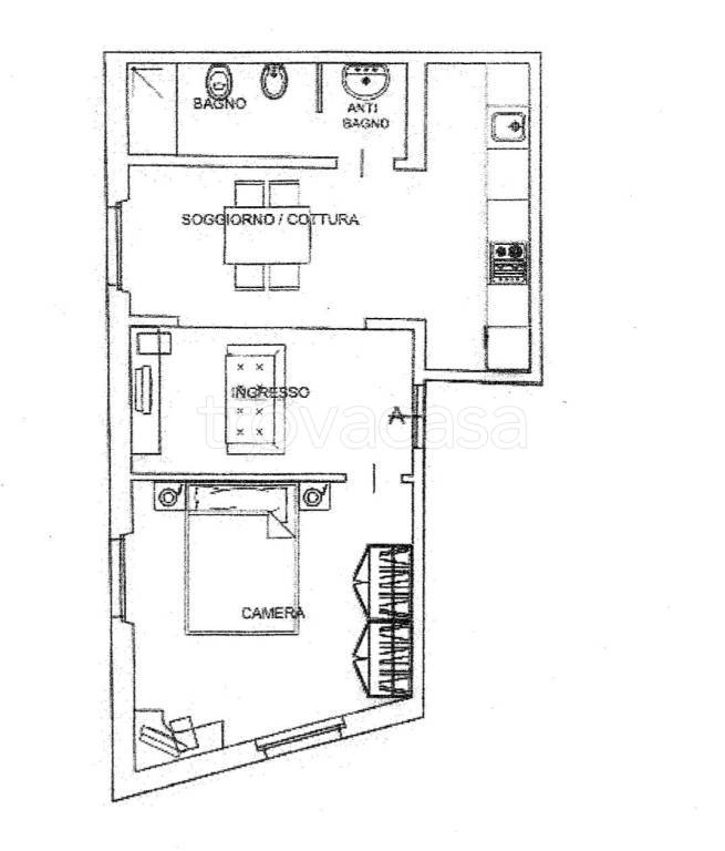
Ponte a greve Bilocale e mezzo grande 57 mq completamente ristrutturato nel 2020 tetto rifatto in posizione tranquilla con panorama sulle colline esposizione est sud est . Appartamento in piccolo condominio di soli 6 condomini, posto all'ultimo piano […]
