Valutazione immobiliare indipendente, accurata e gratuita
Appartamento in vendita a Scansano in zona Pancole a 73.800 € (cod.659c6aae)
Caasa non ha sufficienti informazioni per commentare l'appartamento in vendita a Scansano in zona Pancole - 659c6aae.
Analisi immobiliare
I dati in posseso di Caasa per quest'immobile sono insufficienti, inaffidabili o contraddittori per proporre un'analisi attendibile.
Mercato immobiliare a Scansano
Per quanto riguarda più in generale il comune di Scansano, sono presenti al momento più di 300 annunci per
appartamenti in vendita (meno del 5% dell'intera provincia)
e il maggior numero di annunci per questa tipologia sono relativi proprio alla zona di Pancole.
La richiesta media nella zona dove sorge l'appartamento (Pancole) è pari a
1.355 €/m², molto vicina ai valori della zona Pomonte che sono i più alti del comune .
Possiamo inoltre considerare che in tutto il comune negli ultimi 6 mesi, i prezzi per appartamenti in vendita sono
sostanzialmente stabili (+0,77%).
NOVITÀ Il risultato che vedi dipende dai dati che siamo riusciti ad estrarre dall'annuncio: ottieni una stima più accuranta di questo immobile, inserendo dati più precisi.
N.B. L'Opinione di Caasa® è un servizio sperimentale realizzato tramite tecniche di Intelligenza Artificiale, fornito senza alcuna garanzia di correttezza e completezza. Leggi il disclaimer o segnalaci un problema.
IMMAGINI
IN SINTESI
PROPOSTO DA:
RE/MAX Professional
DESCRIZIONE
con cantina in asta giudiziaria con angolo cottura
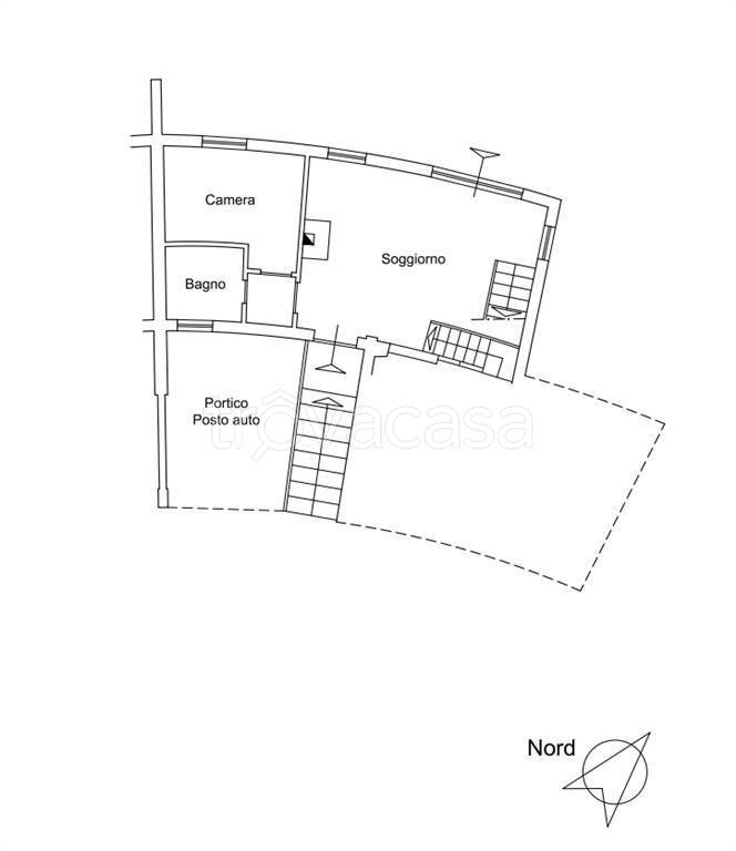
Appartamento in Località Poggio Valentine 37, Scansano, disposto su più livelli (seminterrato, terra e primo) e composto da soggiorno, tre camere e tre bagni, con portico e ampia corte esclusiva. In contesto collinare e riservato, proponiamo un'unità immobiliare a destinazione turistico-ricettiva (CAV), sviluppata su tre livelli e inserita in un complesso realizzato in zona dedicata all'ospitalità. L'abitazione si compone al piano terra di pranzo-soggiorno, una camera e un bagno, mentre al piano primo trovano spazio due ulteriori camere e un secondo bagno. Al piano seminterrato sono presenti una taverna, una cantina e un ulteriore bagno, con predisposizione degli impianti per la realizzazione dell'angolo cottura. Completa il livello un portico al piano terra, ideale come spazio esterno coperto. La proprietà è circondata da una corte esclusiva di circa 2.060 mq, in parte pianeggiante e in parte con andamento scosceso, che garantisce privacy e ampi spazi all'aperto. L'immobile, della superficie lorda di circa 135 mq oltre portico, risulta completato nelle strutture, finiture e impianti, pur mancando la caldaia e il relativo allaccio energetico. Non risultano depositate la fine lavori, l'agibilità e le certificazioni degli impianti. È in corso un accordo con il Comune che potrebbe consentire il cambio di destinazione d'uso a residenziale, rendendo la proprietà particolarmente interessante anche in ottica di valorizzazione futura. Soluzione ideale sia come investimento turistico sia come opportunità di sviluppo immobiliare in una delle aree più suggestive della Maremma toscana. . -- PROFESSIONE ASTE -- L'immobile viene venduto dal Tribunale tramite asta giudiziaria e questo annuncio non vuole essere sostitutivo dei documenti ufficiali relativi alla vendita giudiziaria. Professione Aste è una società di consulenza che accompagna il cliente in tutto il percorso relativo all'acquisto di un immobile in asta giudiziaria, con l'unico obiettivo di massimizzare il rapporto qualità prezzo per l'utente finale. Serietà,[…]

