Valutazione immobiliare indipendente, accurata e gratuita
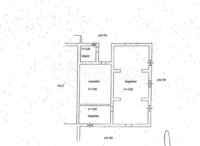
Appartamento in vendita a Scansano in zona Preselle a 166.897 € (cod.6581ff22)
Caasa non ha sufficienti informazioni per commentare l'appartamento a Scansano in zona Preselle - 6581ff22.
Analisi immobiliare
I dati in posseso di Caasa per quest'immobile sono insufficienti, inaffidabili o contraddittori per proporre un'analisi attendibile.
Mercato immobiliare a Scansano
Per quanto riguarda più in generale il comune di Scansano, sono presenti al momento più di 300 annunci per
appartamenti in vendita (meno del 5% dell'intera provincia)
e il maggior numero di annunci per questa tipologia sono relativi alla zona di Pancole, mentre la zona di Preselle risulta molto meno attiva considerando il numero di annunci presenti.
Possiamo inoltre considerare che in tutto il comune negli ultimi 6 mesi, i prezzi per appartamenti in vendita sono
sostanzialmente stabili (+0,85%).
NOVITÀ Il risultato che vedi dipende dai dati che siamo riusciti ad estrarre dall'annuncio: ottieni una stima più accuranta di questo immobile, inserendo dati più precisi.
N.B. L'Opinione di Caasa® è un servizio sperimentale realizzato tramite tecniche di Intelligenza Artificiale, fornito senza alcuna garanzia di correttezza e completezza. Leggi il disclaimer o segnalaci un problema.
