Valutazione immobiliare indipendente, accurata e gratuita
Casa indipendente in vendita a Roccastrada in zona Roccatederighi a 165.000 € (cod.659ecac0)
Caasa non ha sufficienti informazioni per commentare la casa indipendente a Roccastrada Roccatederighi - 659ecac0.
Analisi immobiliare
I dati in posseso di Caasa per quest'immobile sono insufficienti, inaffidabili o contraddittori per proporre un'analisi attendibile.
Mercato immobiliare a Roccastrada
Per quanto riguarda più in generale il comune di Roccastrada, sono presenti al momento oltre 500 annunci per
case indipendenti in vendita (meno del 10% dell'intera provincia)
e il maggior numero di annunci per questa tipologia sono relativi proprio alla zona di Roccatederighi.
La richiesta media nella zona dove sorge la casa indipendente (Roccatederighi) è pari a
1.110 €/m² che la rende la più economica del comune .
Per quanto riguarda la dinamica dei prezzi, negli ultimi 6 mesi i prezzi medi in tutto il comune per case indipendenti in vendita sono
sostanzialmente stabili (-1,21%).
NOVITÀ Il risultato che vedi dipende dai dati che siamo riusciti ad estrarre dall'annuncio: ottieni una stima più accuranta di questo immobile, inserendo dati più precisi.
N.B. L'Opinione di Caasa® è un servizio sperimentale realizzato tramite tecniche di Intelligenza Artificiale, fornito senza alcuna garanzia di correttezza e completezza. Leggi il disclaimer o segnalaci un problema.
IMMAGINI
IN SINTESI
DESCRIZIONE
di recente ristrutturazione con cantina con posto auto di recente ristrutturazione con garage
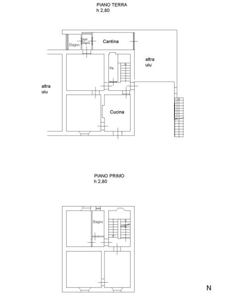
In vendita abitazione singola ed indipendente situata a pochi km dal borgo medievale di Roccatederighi e dal paese di Sassofortino. La stessa è stata ristrutturata completamente con il rifacimento del tetto ed è composta da cucina, sala, disimpegno, camera, e bagno a piano terra mentre al piano primo si trovano altri tre vani ed un bagno. Ambienti luminosi. Ampio garage di circa 30 mq e cantina lavanderia. Di proprietà terreno situato dietro casa di circa 850 mq. Davanti al fabbricato una corte esclusiva. La proprietà è recintata

