Valutazione immobiliare indipendente, accurata e gratuita
Appartamento in vendita ad Orbetello in zona Giannella a 380.000 € (cod.658d5e21)
Caasa non ha sufficienti informazioni per commentare l'appartamento ad Orbetello in zona Giannella - 658d5e21.
Analisi immobiliare
I dati in posseso di Caasa per quest'immobile sono insufficienti, inaffidabili o contraddittori per proporre un'analisi attendibile.
Mercato immobiliare ad Orbetello
Per quanto riguarda più in generale il comune di Orbetello, sono presenti al momento oltre 500 annunci per
appartamenti in vendita (meno del 5% dell'intera provincia)
e il maggior numero di annunci per questa tipologia sono relativi alla zona di Albinia, mentre la zona di Giannella risulta molto meno attiva considerando il numero di annunci presenti.
La richiesta media nella zona dove sorge l'appartamento (Giannella) è pari a
3.535 €/m², molto vicina ai valori della zona Ansedonia che sono i più alti del comune .
Relativamente alla dinamica dei prezzi, possiamo dire che negli ultimi 6 mesi i prezzi medi in tutto il comune per appartamenti in vendita sono
sostanzialmente stabili (+0,22%).
NOVITÀ Il risultato che vedi dipende dai dati che siamo riusciti ad estrarre dall'annuncio: ottieni una stima più accuranta di questo immobile, inserendo dati più precisi.
N.B. L'Opinione di Caasa® è un servizio sperimentale realizzato tramite tecniche di Intelligenza Artificiale, fornito senza alcuna garanzia di correttezza e completezza. Leggi il disclaimer o segnalaci un problema.
IMMAGINI
IN SINTESI
DESCRIZIONE
di recente costruzione con giardino con posto auto con cucina abitabile di recente costruzione per vacanza
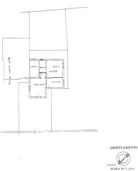
Appartamento al piano terra con giardino e ingresso indipendente in località Giannella, a soli 200 metri dalla spiaggia: una soluzione perfetta per chi sogna il mare a portata di mano. La proprietà è circondata da circa 200 mq di corte privata, uno spazio esterno esclusivo ideale per momenti di relax, pranzi all’aperto o per vivere appieno la tranquillità della zona. Completa l’esterno una comoda rimessa, perfetta come magazzino o deposito. L’appartamento, di circa 75 mq, si presenta in buono stato ed è composto da soggiorno accogliente, cucina abitabile, due camere da letto e un bagno. Gli ambienti sono funzionali e ben distribuiti, pronti per essere vissuti fin da subito. A rendere ancora più interessante la proprietà troviamo un posto auto interno e un pozzo, elementi che garantiscono praticità e autonomia. Ideale come casa vacanze, investimento o residenza per chi desidera vivere a pochi passi dal mare, in una delle zone più apprezzate della costa toscana, tra natura, relax e comodit




