Valutazione immobiliare indipendente, accurata e gratuita
Appartamento in vendita a Monte Argentario in zona Porto Ercole a 850.000 € (cod.651fe48a)
Caasa non ha sufficienti informazioni per commentare l'appartamento a Monte Argentario Porto Ercole - 651fe48a.
Analisi immobiliare
I dati in posseso di Caasa per quest'immobile sono insufficienti, inaffidabili o contraddittori per proporre un'analisi attendibile.
Mercato immobiliare a Monte Argentario
Per quanto riguarda più in generale il comune di Monte Argentario, sono presenti al momento ben circa mille annunci per
appartamenti in vendita (meno del 10% dell'intera provincia)
e il maggior numero di annunci per questa tipologia sono relativi alla zona di Porto Santo Stefano, mentre la zona di Porto Ercole risulta molto meno attiva considerando il numero di annunci presenti.
La richiesta media nella zona dove sorge l'appartamento (Porto Ercole) è pari a
5.120 €/m² e ne fa la più pregiata del comune .
Possiamo inoltre considerare che in tutto il comune negli ultimi 6 mesi, i prezzi per appartamenti in vendita sono
in aumento (+3,45%).
NOVITÀ Il risultato che vedi dipende dai dati che siamo riusciti ad estrarre dall'annuncio: ottieni una stima più accuranta di questo immobile, inserendo dati più precisi.
N.B. L'Opinione di Caasa® è un servizio sperimentale realizzato tramite tecniche di Intelligenza Artificiale, fornito senza alcuna garanzia di correttezza e completezza. Leggi il disclaimer o segnalaci un problema.
IMMAGINI
IN SINTESI
DESCRIZIONE
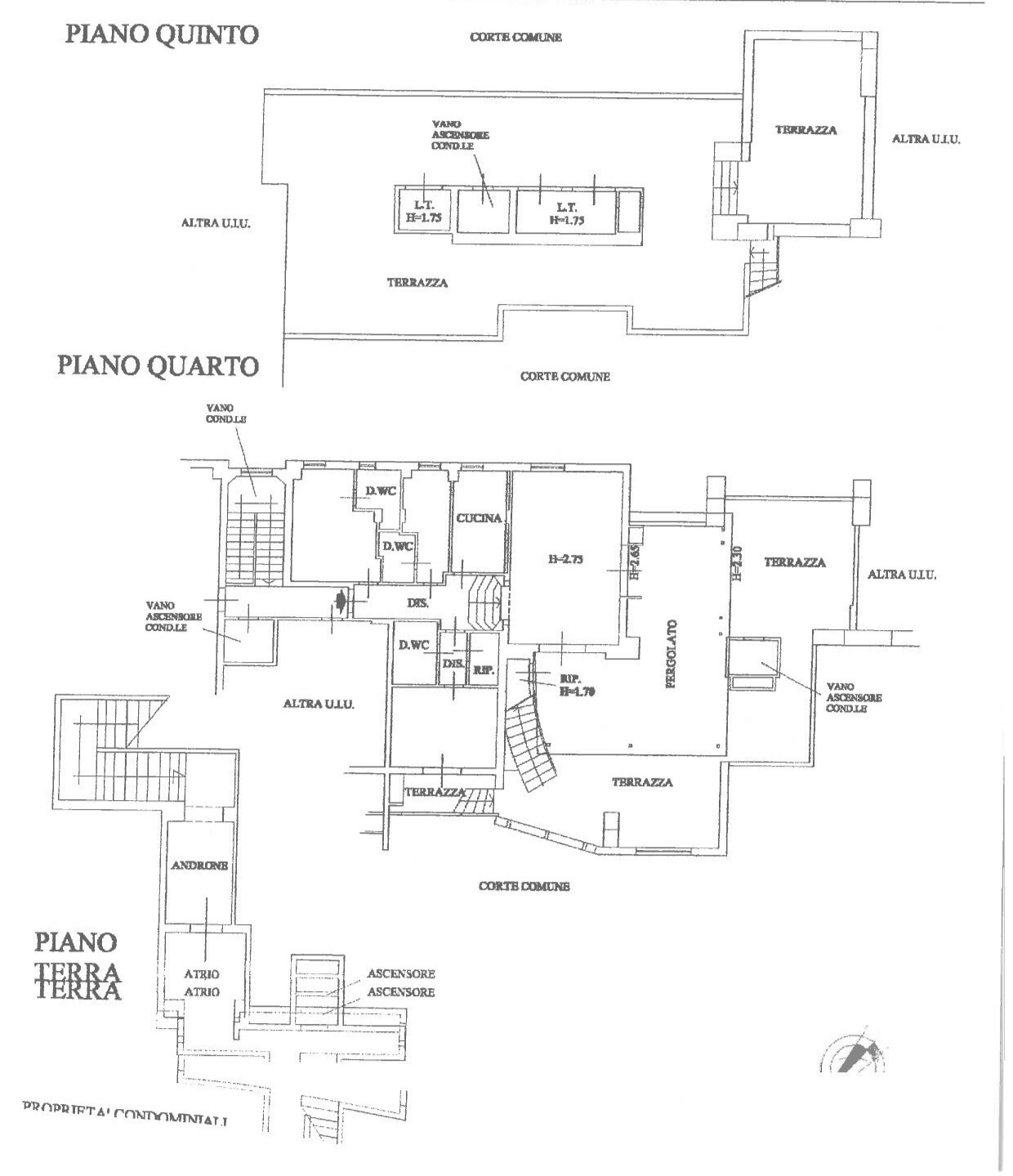
da ristrutturare con terrazza con cantina con cucina abitabile con ascensore da ristrutturare
Porto Ercole Attico da ristrutturare con grandi terrazze nel prestigioso Condominio di Villa Consani Nel rinomato contesto di Villa Consani, uno dei condomìni più esclusivi di Porto Ercole, proponiamo in vendita un attico di ampie dimensioni, servito da ascensore e distribuito tra il quarto e quinto piano, completamente da ristrutturare e ricco di potenzialità. Una proprietà unica, ideale per dare vita a una residenza esclusiva nel cuore dellArgentario. Limmobile si compone di tre camere, ciascuna dotata di bagno en-suite, una cucina indipendente e un ampio salone con zona pranzo, caratterizzato da spazi generosi e grande luminosità. Il vero valore aggiunto della proprietà è rappresentato dalle ampie terrazze, disposte su due livelli, che regalano un raro senso di apertura e libertà. Gli spazi esterni includono aree perfette per pranzi allaperto, zone relax e angoli panoramici, oltre a ripostiglio e spogliatoio, ideali per organizzare al meglio la vita estiva. Un attico dalle potenzialità straordinarie, inserito in un contesto signorile e immerso nel verde, perfetto per chi è alla ricerca di un progetto da personalizzare e trasformare in una dimora di grande charme nel cuore di Porto Ercole. - SC9510913





