Valutazione immobiliare indipendente, accurata e gratuita
Appartamento in vendita a Follonica a 350.000 € (cod.6535953f)
Caasa non ha sufficienti informazioni per commentare l'appartamento in vendita a Follonica - 6535953f.
Analisi immobiliare
I dati in posseso di Caasa per quest'immobile sono insufficienti, inaffidabili o contraddittori per proporre un'analisi attendibile.
Mercato immobiliare a Follonica
Per quanto riguarda più in generale la città di Follonica, sono presenti al momento ben oltre mille annunci per
appartamenti in vendita (quasi il 20% dell'intera provincia)
e il maggior numero di annunci per questa tipologia sono relativi alla zona di Area Industriale.
La dinamica dei prezzi in tutta la città mostra che negli ultimi 6 mesi, i prezzi per appartamenti in vendita sono
in debole aumento (+1,98%).
NOVITÀ Il risultato che vedi dipende dai dati che siamo riusciti ad estrarre dall'annuncio: ottieni una stima più accuranta di questo immobile, inserendo dati più precisi.
N.B. L'Opinione di Caasa® è un servizio sperimentale realizzato tramite tecniche di Intelligenza Artificiale, fornito senza alcuna garanzia di correttezza e completezza. Leggi il disclaimer o segnalaci un problema.
IMMAGINI
IN SINTESI
DESCRIZIONE
di nuova costruzione con terrazza con posto auto con garage con giardino per vacanza di nuova costruzione
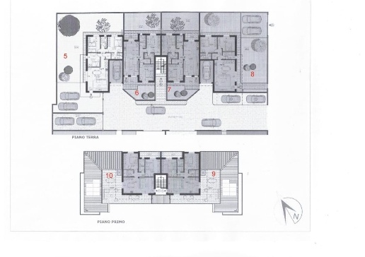
VILLA ESAFAMILIARE IN PRATORANIERI, proponiamo in vendita quattro appartamenti al piano terra e due appartamenti al primo piano, da mq 84 a 95, tutti con ingresso indipendente, di nuova costruzione, giardino, ampie terrazze, grarage e posto auto. Gli immobili sono in classe A, con rifiniture di pregio in un contesto silenzioso e circondato da ampio parco privato, di fronte alla spiaggia e la pineta di Pratoranieri Nord, la zona più ambita per le vacanze, apprezzata anche per la vicinanza alle belle spiagge di Carbonifera e di Torre mozza distano dal mare solo 150 metri, a 100 metri di distanza si può accedere al nuovissimo campo da golf fra i migliori in Italia Ogni appartamento dispone di un ampio giardino privato, ampie terrazze, posto auto e garage. - anno

