Valutazione immobiliare indipendente, accurata e gratuita
L'Opinione di Caasa® per la casa indipendente in vendita a Signa a 460.000 € (cod.64f145ad)
Secondo Caasa, per la casa indipendente in vendita a Signa, la richiesta di 460.000 € è leggermente svantaggiosa rispetto agli annunci simili.
Analisi immobiliare
La casa indipendente, situata nella zona OMI R2, è proposta in vendita a
460.000 € per una
superficie commerciale di
143 m² e quindi ad un prezzo per metro quadrato pari a
3216 €/m²
.
Tale prezzo
è leggermente meno conveniente di quello stimato da Caasa per immobili in vendita simili per tipologia e caratteristiche e localizzati nella stessa zona OMI, che è compreso tra
2.861 €/m² e
3.124 €/m².
Grazie alla conoscenza con buona approssimazione della localizzazione dell'immobile, è stato possibile utilizzare come raffronto i dati medi elaborati esattamente nella zona OMI di appertenenza (RESTO DEL TERRITORIO NORD - OVEST). Anche se Caasa non è riuscita a determinare la classe energetica, ad affinare la stima hanno contribuito anche lo stato dell'immobile (di nuova costruzione) e la presenza di alcune caratteristiche significative come il garage. Per i motivi esposti i valori accettabili per l'offerta costituiscono un intervallo relativamente limitato.
Mercato immobiliare a Signa
Per quanto riguarda più in generale la città di Signa, sono presenti al momento più di 300 annunci per
case indipendenti in vendita (meno del 5% dell'intera provincia)
e il maggior numero di annunci per questa tipologia sono relativi alla zona di San Mauro a Signa.
Relativamente alla dinamica dei prezzi, possiamo dire che negli ultimi 6 mesi i prezzi medi in tutta la città per case indipendenti in vendita sono
in aumento (+4,99%).
NOVITÀ Il risultato che vedi dipende dai dati che siamo riusciti ad estrarre dall'annuncio: ottieni una stima più accuranta di questo immobile, inserendo dati più precisi.
N.B. L'Opinione di Caasa® è un servizio sperimentale realizzato tramite tecniche di Intelligenza Artificiale, fornito senza alcuna garanzia di correttezza e completezza. Leggi il disclaimer o segnalaci un problema.
IMMAGINI
IN SINTESI
PROPOSTO DA:
Real Home s.a.s.
DESCRIZIONE
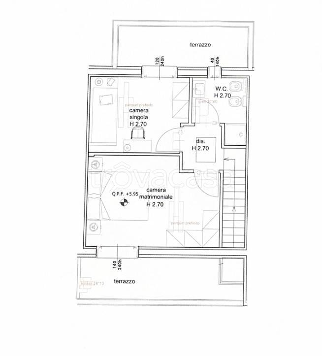
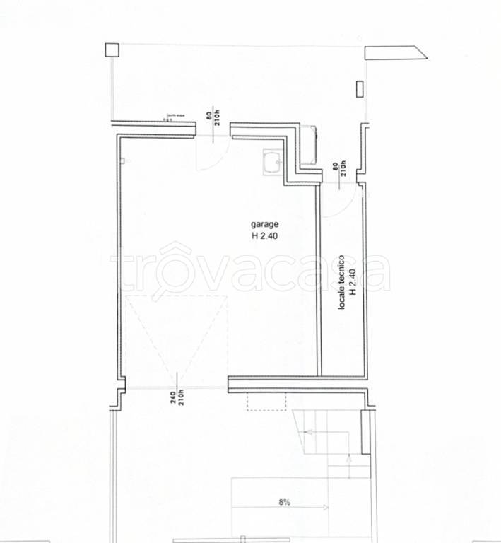
di nuova costruzione con posto auto con terrazza con giardino con garage con angolo cottura di nuova costruzione
In zona residenziale tranquilla e ben servita di Sant'Angelo, proponiamo in vendita una villetta a schiera di nuova costruzione, realizzata con materiali di pregio e tecnologie di ultima generazione per garantire il massimo dell’efficienza energetica. L’immobile si sviluppa su tre livelli: al piano terra si accede attraverso un ampio porticato che conduce al box garage, affiancato da un comodo locale tecnico. Salendo al primo troviamo la zona giorno, composta da un ingresso che apre su uno spazioso e luminoso soggiorno, zona pranzo, angolo cottura, una camera singola e un bagno. Attraverso una scala interna si accede al secondo piano, dove si sviluppa la zona notte con una camera matrimoniale di generose dimensioni, una seconda camera singola, entrambe godono di una comoda terrazza abitabile ed il bagno a servizio delle due camere. La proprietà è completata da uno spazio esterno di circa 120 mq, in parte pavimentato, e da due posti auto privati. Una soluzione moderna, efficiente e confortevole, ideale per chi cerca qualità e funzionalità in una posizione strategica. Se desiderate ulteriori informazioni relativamente all'immobile rimaniamo a vostra disposizione. Potete contattarci telefonicamente per fissare un appuntamento e visionare l’immobile. Real Home Toscana - 3762135753


