Valutazione immobiliare indipendente, accurata e gratuita
Appartamento in vendita a Signa a 189.000 € (cod.63c4b97e)
Caasa non ha sufficienti informazioni per commentare l'appartamento in vendita a Signa - 63c4b97e.
	Analisi immobiliare
	
	I dati in posseso di Caasa per quest'immobile sono insufficienti, inaffidabili o contraddittori per proporre un'analisi attendibile.
	
	Mercato immobiliare a Signa
	
	Per quanto riguarda più in generale la città di Signa, sono presenti al momento quasi 500 annunci per 
		appartamenti in vendita (meno del 5% dell'intera provincia) 
	
	 e il maggior numero di annunci per questa tipologia sono relativi alla zona di Sant'Angelo a Lecore.
	
	
	
	Possiamo inoltre considerare che in tutta la città negli ultimi 6 mesi, i prezzi per appartamenti in vendita sono 
		in deciso aumento (+8,96%).
	
	
	
NOVITÀ Il risultato che vedi dipende dai dati che siamo riusciti ad estrarre dall'annuncio: ottieni una stima più accuranta di questo immobile, inserendo dati più precisi.
N.B. L'Opinione di Caasa® è un servizio sperimentale realizzato tramite tecniche di Intelligenza Artificiale, fornito senza alcuna garanzia di correttezza e completezza. Leggi il disclaimer o segnalaci un problema.
IMMAGINI
IN SINTESI
DESCRIZIONE
di recente ristrutturazione con giardino di recente ristrutturazione con angolo cottura con termocondizionamento
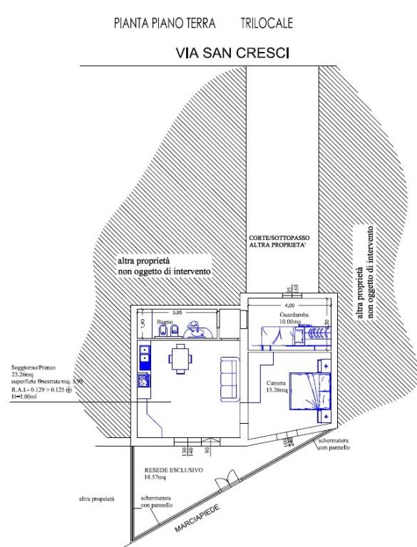
appartamento al piano terra, con ingresso indipendente, no condominio è stato completamente ristrutturato per offrirti il massimo del comfort e dello stile. Situato in una zona ben servita, a pochi passi dalla fermata del tram e dalla nuova tranvia, […]
 
                               
                        