Valutazione immobiliare indipendente, accurata e gratuita
Appartamento in vendita a Sesto Fiorentino a 470.000 € (cod.658f0c71)
Caasa non ha sufficienti informazioni per commentare l'appartamento in vendita a Sesto Fiorentino - 658f0c71.
Analisi immobiliare
I dati in posseso di Caasa per quest'immobile sono insufficienti, inaffidabili o contraddittori per proporre un'analisi attendibile.
Mercato immobiliare a Sesto Fiorentino
Per quanto riguarda più in generale la città di Sesto Fiorentino, sono presenti al momento oltre 500 annunci per
appartamenti in vendita (meno del 5% dell'intera provincia)
e il maggior numero di annunci per questa tipologia sono relativi alla zona di Quinto.
Relativamente alla dinamica dei prezzi, possiamo dire che negli ultimi 6 mesi i prezzi medi in tutta la città per appartamenti in vendita sono
sostanzialmente stabili (-0,89%).
NOVITÀ Il risultato che vedi dipende dai dati che siamo riusciti ad estrarre dall'annuncio: ottieni una stima più accuranta di questo immobile, inserendo dati più precisi.
N.B. L'Opinione di Caasa® è un servizio sperimentale realizzato tramite tecniche di Intelligenza Artificiale, fornito senza alcuna garanzia di correttezza e completezza. Leggi il disclaimer o segnalaci un problema.
IMMAGINI
IN SINTESI
PROPOSTO DA:
idee-&-immobili-srl
DESCRIZIONE
di nuova costruzione con posto auto con terrazza con cantina di nuova costruzione con angolo cottura
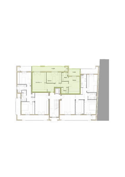
Sesto - In Piazza San Francesco, in una zona prestigiosa e perfettamente servita — a breve distanza da negozi, supermercati, servizi pubblici e dalla stazione ferroviaria — proponiamo in vendita esclusiva eleganti appartamenti di nuova costruzione, inseriti in un raffinato complesso residenziale composto da sole 10 unità abitative. L'appartamento, situato al primo piano, è caratterizzato da un ingresso indipendente che conduce alla zona giorno open space con angolo cottura e accesso a una piacevole loggia vivibile. La zona notte comprende due camere, un pratico ripostiglio, doppi servizi e un secondo terrazzo a loggia, ideale per vivere gli spazi esterni in totale comfort. Tutte le unità dispongono inoltre di un utile vano soffitta. Posto auto in aggiunta del prezzo L'immobile è progettato per garantire elevati standard di comfort abitativo ed efficienza energetica, con ambienti luminosi e finiture di pregio, realizzate con materiali e soluzioni di ultima generazione. Tra le principali dotazioni: impianto autonomo per aria calda e fredda con ventilazione meccanica, avvolgibili elettrici, isolamento acustico, videocitofono e porta blindata. È ancora possibile personalizzare le finiture scegliendo tra quelle previste dal capitolato di alto livello. Completa la proprietà una soffitta situata all'ultimo piano dell'edificio. Vendita da società. Possibilità di posto auto a parte. Classe Energetica: A4


