Valutazione immobiliare indipendente, accurata e gratuita
Casa indipendente in vendita a Sesto Fiorentino (cod.65322ddd)
Caasa non ha sufficienti informazioni per commentare la casa indipendente in vendita a Sesto Fiorentino - 65322ddd.
Analisi immobiliare
I dati in posseso di Caasa per quest'immobile sono insufficienti, inaffidabili o contraddittori per proporre un'analisi attendibile.
Mercato immobiliare a Sesto Fiorentino
Per quanto riguarda più in generale la città di Sesto Fiorentino, sono presenti al momento più di 300 annunci per
case indipendenti in vendita (meno del 5% dell'intera provincia)
e il maggior numero di annunci per questa tipologia sono relativi alla zona di Colonnata.
Relativamente alla dinamica dei prezzi, possiamo dire che negli ultimi 6 mesi i prezzi medi in tutta la città per case indipendenti in vendita sono
sostanzialmente stabili (-0,21%).
NOVITÀ Il risultato che vedi dipende dai dati che siamo riusciti ad estrarre dall'annuncio: ottieni una stima più accuranta di questo immobile, inserendo dati più precisi.
N.B. L'Opinione di Caasa® è un servizio sperimentale realizzato tramite tecniche di Intelligenza Artificiale, fornito senza alcuna garanzia di correttezza e completezza. Leggi il disclaimer o segnalaci un problema.
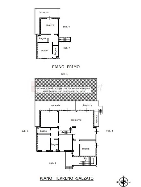
IMMAGINI
IN SINTESI
DESCRIZIONE
di recente costruzione di recente costruzione in asta giudiziaria
Sesto Fiorentino (FI) [SY596910] SP130, 50019 Sesto Fiorentino FI, Italia rge 213/2019-31 Terreno boschivo di mq 81.020 di forma trapezoidale con accesso dalla strada vicinale della Buca della Neve - Terreno boschivo di mq.720 di forma rettangolare s […]
