Valutazione immobiliare indipendente, accurata e gratuita
Casale in vendita a Scarperia e San Piero in zona Scarperia a 500.000 € (cod.6512d6ec)
Caasa non ha sufficienti informazioni per commentare il casale a Scarperia e San Piero in zona Scarperia - 6512d6ec.
Analisi immobiliare
I dati in posseso di Caasa per quest'immobile sono insufficienti, inaffidabili o contraddittori per proporre un'analisi attendibile.
Mercato immobiliare a Scarperia e San Piero
Per quanto riguarda più in generale il comune di Scarperia e San Piero, sono presenti al momento più di cinquanta annunci per
casali in vendita (meno del 5% dell'intera provincia)
e il maggior numero di annunci per questa tipologia sono relativi proprio alla zona di Scarperia.
Per quanto riguarda la richiesta media in zona Scarperia, dove sorge il casale, essa è pari a circa
1.190 €/m² per casali in vendita.
Per quanto riguarda la dinamica dei prezzi, negli ultimi 6 mesi i prezzi medi in tutto il comune per casali in vendita sono
in forte aumento (+17,03%).
NOVITÀ Il risultato che vedi dipende dai dati che siamo riusciti ad estrarre dall'annuncio: ottieni una stima più accuranta di questo immobile, inserendo dati più precisi.
N.B. L'Opinione di Caasa® è un servizio sperimentale realizzato tramite tecniche di Intelligenza Artificiale, fornito senza alcuna garanzia di correttezza e completezza. Leggi il disclaimer o segnalaci un problema.
IMMAGINI
IN SINTESI
DESCRIZIONE
da ristrutturare con giardino da ristrutturare
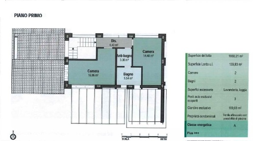
La proprietà è facilmente accessibile ed è costituita da un complesso colonico da ristrutturare di complessivi mq. 1.000 suddiviso in più edifici circondati da mq. 20.000 di terreno, in cui sarà possibile ricavare 5 unità abitative di pregio con studio di progetto e piano di recupero già approvato dal Comune di Scarperia. Situata in posizione strategica alle porte del centro abitato, la proprietà coniuga perfettamente la serenità della campagna con la comodità dei servizi essenziali. Rappresenta un'opportunità d'investimento irripetibile per chi cerca una soluzione di pregio, immersa nelle bellezze naturali di uno dei borghi più caratteristici e affascinanti del Mugello. Un'occasione unica per investire in una zona esclusiva, immersa nel verde rigoglioso e nel fascino autentico di un caratteristico borgo del Mugello. La proprietà immobiliare è provvisto di Delibera della Giunta Comunale di Scarperia per il recupero del complesso immobiliare con modifica e aggiornamento schema di convenzione urbanistica, e lavori da scomputare. Luce, e acqua sono presenti in loco. Nuovo termine del piano di recupero è prorogato al 18/06/2028. Classe Energetica: G


