Valutazione immobiliare indipendente, accurata e gratuita
L'Opinione di Caasa® per la casa indipendente in vendita a Scandicci in zona Mosciano a 800.000 € (cod.65296a34)
Secondo Caasa, per la casa indipendente a Scandicci in zona Mosciano, la richiesta di 800.000 € è significativamente vantaggiosa rispetto agli annunci simili.
Analisi immobiliare
La casa indipendente, situata nella zona OMI R1, è proposta in vendita a
800.000 € per una
superficie commerciale di
205 m² e quindi ad un prezzo per metro quadrato pari a
3902 €/m²
.
Questo valore
è significativamente più basso di quello stimato da Caasa per immobili in vendita simili per tipologia, caratteristiche, classe energetica e localizzati nella stessa zona OMI, che è compreso tra
4.908 €/m² e
5.243 €/m².
La conoscenza con buona approssimazione della localizzazione dell'immobile ha consentito di utilizzare come raffronto i dati medi elaborati esattamente nella zona OMI di appertenenza (SCANDICCI ALTO - SAN MARTINO ALLA PALMA - MOSCIANO - GIOGOLI) per case indipendenti (da 2.960 €/m² a 4.345 €/m²) e per ville (da 2.950 €/m² a 4.270 €/m²). Inoltre, Caasa ha potuto affinare la stima anche con la conoscenza della classe energetica (B) oltre che dello stato dell'immobile (di recente ristrutturazione) e di alcune caratteristiche significative come il posto auto. In virtù di queste considerazioni è possibile considerare un intervallo di valori accettabili per l'offerta abbastanza limitato.
Mercato immobiliare a Scandicci
Per quanto riguarda più in generale la città di Scandicci, sono presenti al momento oltre 500 annunci per
case indipendenti in vendita (meno del 5% dell'intera provincia)
e il maggior numero di annunci per questa tipologia sono relativi proprio alla zona di Mosciano.
La richiesta media nella zona dove sorge la casa indipendente (Mosciano) è pari a
3.605 €/m², molto vicina ai valori della zona Badia a Settimo che sono i più alti della città .
Per quanto riguarda la dinamica dei prezzi, negli ultimi 6 mesi i prezzi medi in tutta la città per case indipendenti in vendita sono
in leggero aumento (+2,62%).
NOVITÀ Il risultato che vedi dipende dai dati che siamo riusciti ad estrarre dall'annuncio: ottieni una stima più accuranta di questo immobile, inserendo dati più precisi.
N.B. L'Opinione di Caasa® è un servizio sperimentale realizzato tramite tecniche di Intelligenza Artificiale, fornito senza alcuna garanzia di correttezza e completezza. Leggi il disclaimer o segnalaci un problema.
IMMAGINI
IN SINTESI
PROPOSTO DA:
INTERMEDIA PROGETTI DI ALESSIO GHIRIBELLI
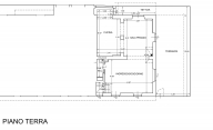
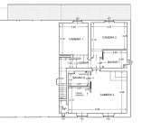
DESCRIZIONE
di recente ristrutturazione con posto auto con terrazza di recente ristrutturazione con giardino
Mosciano nella splendida cornice delle colline toscane nella parte più alta della collina di scandicci panoramica su firenze, villa ristrutturata in tre unità con ampi giardini e terrazzi restauro veramente ben fatto e definito, di tipo esclusivamente conservativo che valorizza ogni unità immobiliare. L'immobile è libero su tre lati evidenzia caratteristiche architettoniche caratteristiche della villa padronale archi in pietra serena e mattoni antichi cotto anche nella antico anche nella parte esterna della terrazza panoramica su firenze al piano terreno abbiamo ampia cucina bagno di servizio e salone doppio, pranzo con affaccio sulla terrazza dove è possibile creare un pergolato chiuso a risparmio energetico ideale per ricevere amici e per fare feste. Infissi in castagno con vetri camera tre ampie camere al primo piano una di queste può essere divisa in 2 al piano 2 bagni al seminterrato che comunque affaccia al terreno sul giardino su tutto un lato 75 mq di locali da cui è possibile ricavare un secondo appartamento con bagno ed attacchi cucina già esistenti 4 e piu posti auto . epi: 55 kwh/m2 anno

