Valutazione immobiliare indipendente, accurata e gratuita
Casa indipendente in vendita a Scandicci in zona Casellina a 500.000 € (cod.652136e5)
Caasa non ha sufficienti informazioni per commentare la casa indipendente a Scandicci in zona Casellina - 652136e5.
Analisi immobiliare
I dati in posseso di Caasa per quest'immobile sono insufficienti, inaffidabili o contraddittori per proporre un'analisi attendibile.
Mercato immobiliare a Scandicci
Per quanto riguarda più in generale la città di Scandicci, sono presenti al momento oltre 500 annunci per
case indipendenti in vendita (meno del 5% dell'intera provincia)
e il maggior numero di annunci per questa tipologia sono relativi alla zona di Mosciano, ma anche la zona di Casellina è molto attiva dal punto di vista immobiliare.
La richiesta media nella zona dove sorge la casa indipendente (Casellina) è pari a
3.325 €/m², molto vicina ai valori della zona Badia a Settimo che sono i più alti della città .
Relativamente alla dinamica dei prezzi, possiamo dire che negli ultimi 6 mesi i prezzi medi in tutta la città per case indipendenti in vendita sono
in leggero aumento (+2,52%).
NOVITÀ Il risultato che vedi dipende dai dati che siamo riusciti ad estrarre dall'annuncio: ottieni una stima più accuranta di questo immobile, inserendo dati più precisi.
N.B. L'Opinione di Caasa® è un servizio sperimentale realizzato tramite tecniche di Intelligenza Artificiale, fornito senza alcuna garanzia di correttezza e completezza. Leggi il disclaimer o segnalaci un problema.
IMMAGINI
IN SINTESI
PROPOSTO DA:
INTERMEDIA PROGETTI DI ALESSIO GHIRIBELLI
DESCRIZIONE
di recente costruzione con terrazza con cucina abitabile con balcone di recente costruzione
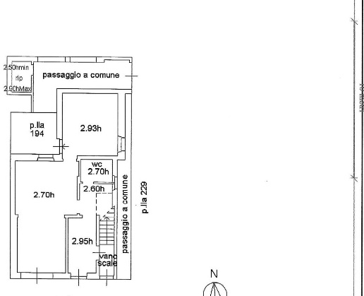
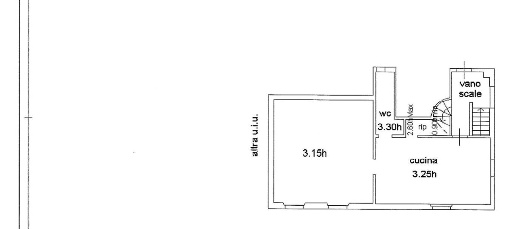
Palazzina a casellina divisa in tre appartamenti l'immpobile si sviluppa su tre livelli: al piano terra un fondo finestrato con probabile possibilità cambio destinazione di 60 mq diviso in due locali e un bagno e 40 mq di resede, ampia entrata con saracinesca e porta finestra e ulteriori tre finestre, pertanto molto luminoso. Al primo piano bilocale 45 mq con cucina abitabile, camera, bagno e stanza corridoio guardaroba. Sempre al primo piano grande trilocale di 75 mq e balcone. Al eecondo e ultimo piano appartamento 4 vani. Tutto in buone condizioni ,Impianti elettrici a posto, pavimenti in Cotto e travi a vista, tetto a posto, facciate in buono stato. Oggetto caratteristico Ottima vicinanza ai servizi EPI: 201,7 kwh/m2 anno




