Valutazione immobiliare indipendente, accurata e gratuita

L'Opinione di Caasa® per il casale in vendita a Scandicci in zona Badia a Settimo a 390.000 € (cod.64e21013)

Secondo Caasa, per il casale a Scandicci in zona Badia a Settimo, la richiesta di 390.000 € è significativamente vantaggiosa rispetto agli annunci simili.

Analisi immobiliare
Il casale, situato vicino a Via della Pieve nella zona OMI E3, è proposto in vendita a 390.000 € per una superficie commerciale di 100 m² e quindi ad un prezzo per metro quadrato pari a 3900 €/m² .
Tale valore è decisamente inferiore a quello stimato da Caasa per immobili in vendita simili per tipologia, caratteristiche e classe energetica, che è compreso tra 4.611 €/m² e 5.015 €/m². Sono stati utilizzati nel raffronto i soli valori medi cittadini, visto che Caasa non dispone di informazioni di dettaglio e di adeguata affidabilità sulle singole zone immobiliari nelle vicinanze dell'immobile. All'elaborazione della stima ha però contribuito anche la classe energetica (A) oltre alla condizione dell'immobile (di recente ristrutturazione) e alla presenza di alcune caratteristiche significative come il posto auto. Per questi motivi i valori considerati accettabili per l'offerta costituiscono un intervallo comunque ampio.

Mercato immobiliare a Scandicci
Per quanto riguarda più in generale la città di Scandicci, sono presenti al momento più di cinquanta annunci per casali in vendita (meno del 5% dell'intera provincia) e il maggior numero di annunci per questa tipologia sono relativi alla zona di San Martino alla Palma, mentre la zona di Badia a Settimo risulta molto meno attiva considerando il numero di annunci presenti.

La dinamica dei prezzi in tutta la città mostra che negli ultimi 6 mesi, i prezzi per casali in vendita sono in forte aumento (+29,42%).

NOVITÀ Il risultato che vedi dipende dai dati che siamo riusciti ad estrarre dall'annuncio: ottieni una stima più accuranta di questo immobile, inserendo dati più precisi.

N.B. L'Opinione di Caasa® è un servizio sperimentale realizzato tramite tecniche di Intelligenza Artificiale, fornito senza alcuna garanzia di correttezza e completezza. Leggi il disclaimer o segnalaci un problema.

IMMAGINI

IN SINTESI

Prezzo:
390.000 €
Superficie:
100 m²
Prezzo al m²:
3900 €/m²
Piano:
terra
Bagni:
2
Classe energetica:
A
Città:
Scandicci (FI)
Zona OMI:
E3 (BADIA A SETTIMO - SAN COLOMBANO)
Pubblicato:
ven 26 settembre 2025

PROPOSTO DA:

INTERMEDIA PROGETTI DI ALESSIO GHIRIBELLI

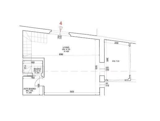
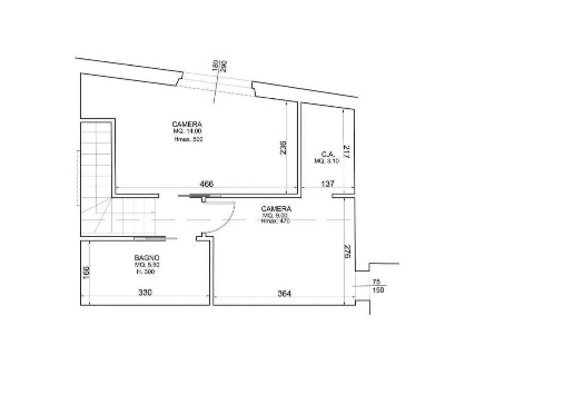
DESCRIZIONE

di recente ristrutturazione con posto auto di recente ristrutturazione con giardino

Scandicci pressi Badia a Settimo, Porzione di Colonica caratteristica con travi a vista caratteristiche architettoniche di pregio archi, portali in pietra serena ,4 ampi vani con giardino in ex convento in ristrutturazione completamente ristrutturata con materiali di pregio, composta da grandissima zona pranzo/living, cucina, antibagno e bagno al piano terra, il piano superiore è composto da due camere , una cabina armadio e un ulteriore bagno. Completano la proprietà un giardino esclusivo di circa 25 mq ed un posto auto privato. Ottime rifiniture. classe A EPI: 12 kwh/m2 anno

  • immobiliare.it
  • yescasa.it
  • bakeca.it
  • cambiocasa.it
  • risorseimmobiliari.it