Valutazione immobiliare indipendente, accurata e gratuita
Locale commerciale in affitto a Scandicci a 11.500 € mese (cod.655ecfbc)
Caasa non ha sufficienti informazioni per commentare il locale commerciale in affitto a Scandicci - 655ecfbc.
Analisi immobiliare
I dati in posseso di Caasa per quest'immobile sono insufficienti, inaffidabili o contraddittori per proporre un'analisi attendibile.
Mercato immobiliare a Scandicci
Per quanto riguarda più in generale la città di Scandicci, sono presenti al momento circa cento annunci per
locali commerciali in affitto (quasi il 20% dell'intera provincia)
e il maggior numero di annunci per questa tipologia sono relativi alla zona di Casellina.
Per quanto riguarda la dinamica dei prezzi, negli ultimi 6 mesi i prezzi medi in tutta la città per locali commerciali in affitto sono
in calo (-3,99%).
NOVITÀ Il risultato che vedi dipende dai dati che siamo riusciti ad estrarre dall'annuncio: ottieni una stima più accuranta di questo immobile, inserendo dati più precisi.
N.B. L'Opinione di Caasa® è un servizio sperimentale realizzato tramite tecniche di Intelligenza Artificiale, fornito senza alcuna garanzia di correttezza e completezza. Leggi il disclaimer o segnalaci un problema.
IMMAGINI
IN SINTESI
DESCRIZIONE
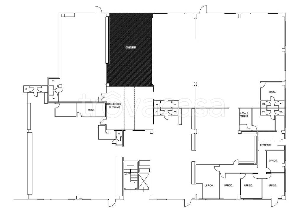
Ampio locale al piano terra, dotato di 11 servizi igienici. Facilmente rimodulabili in base alle esigenze operative. La proprietà si presta a molteplici destinazioni d’uso (artigianale, deposito, laboratorio), grazie agli ampi spazi interni, alla facilità di carico/scarico e alla ottima accessibilità. Situato in posizione strategica, a soli 1 km dallo svincolo autostradale di Scandicci, con rapido collegamento alle principali arterie di comunicazione. Locazione diretta da società proprietaria. Canone soggetto a IVA. POSSIBILITA' ANCHE DI FRAZIONAMENTO O METRATURE PIU' AMPIE E PIANO PRIMO

