Valutazione immobiliare indipendente, accurata e gratuita

Appartamento in vendita a San Casciano in Val di Pesa a 340.000 € (cod.64f05250)

Caasa non ha sufficienti informazioni per commentare l'appartamento a San Casciano in Val di Pesa - 64f05250.

Analisi immobiliare
I dati in posseso di Caasa per quest'immobile sono insufficienti, inaffidabili o contraddittori per proporre un'analisi attendibile.
Mercato immobiliare a San Casciano in Val di Pesa
Per quanto riguarda più in generale la città di San Casciano in Val di Pesa, sono presenti al momento più di 200 annunci per appartamenti in vendita (meno dell'1% dell'intera provincia) e il maggior numero di annunci per questa tipologia sono relativi alla zona di Cerbaia.

Per quanto riguarda la dinamica dei prezzi, negli ultimi 6 mesi i prezzi medi in tutta la città per appartamenti in vendita sono in sostanziale aumento (+5,38%).

NOVITÀ Il risultato che vedi dipende dai dati che siamo riusciti ad estrarre dall'annuncio: ottieni una stima più accuranta di questo immobile, inserendo dati più precisi.

N.B. L'Opinione di Caasa® è un servizio sperimentale realizzato tramite tecniche di Intelligenza Artificiale, fornito senza alcuna garanzia di correttezza e completezza. Leggi il disclaimer o segnalaci un problema.

IMMAGINI

IN SINTESI

Prezzo:
340.000 €
Superficie:
60 m²
Prezzo al m²:
5666 €/m²
Piano:
n.d.
Bagni:
2
Classe energetica:
n.d.
Città:
San Casciano in Val di Pesa (FI)
Zona OMI:
B1 (CAPOLUOGO)
Indirizzo:
Pubblicato:
gio 3 aprile 2025

PROPOSTO DA:

logo AGENZIA IMMOBILIARE DEL CHIANTI FIORENTINO S.N.C.

AGENZIA IMMOBILIARE DEL CHIANTI FIORENTINO S.N.C.

VIA MACHIAVELLI, 41, San Casciano in Val di Pesa (FI)

Vai ai contatti

DESCRIZIONE

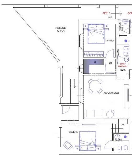
di recente ristrutturazione con cantina con terrazza di recente ristrutturazione con balcone

Nel centro di San Casciano VdP, vendesi 5 appartamenti in una palazzina oggetto di completa ristrutturazione. I lavori attualmente in fase di allestimento, interesseranno sia il tetto, le facciate, gli impianti e tutte le parti interne per rendere funzionale ed al passo coi tempi questa palazzina anni '50. L'appartamento n.1 del progetto prevede un ingresso completamente indipendente dal resede privato, soggiorno con cucina a vista, 2 camere, due bagni ed il balcone sull'ingresso. Al piano seminterrato si trova la cantina. In questa fase è possibile scegliere i materiali e personalizzare le finiture su un ampio capitolato. Oggetto molto interessante perché completamente ristrutturato e quindi senza necessità di altri lavori, con resede e spazio esterno privato, a 2 passi dal centro. Anche questa nostra esclusiva è stata preventivamente verificata ed analizzata prima di essere proposta sul mercato immobiliare, maggiori informazioni in Agenzia. Classe Energetica: A1

  • yescasa.it
  • cambiocasa.it
  • risorseimmobiliari.it