Valutazione immobiliare indipendente, accurata e gratuita

Appartamento in vendita a San Casciano in Val di Pesa a 300.000 € (cod.64eb6821)

Caasa non ha sufficienti informazioni per commentare l'appartamento a San Casciano in Val di Pesa - 64eb6821.

Analisi immobiliare
I dati in posseso di Caasa per quest'immobile sono insufficienti, inaffidabili o contraddittori per proporre un'analisi attendibile.
Mercato immobiliare a San Casciano in Val di Pesa
Per quanto riguarda più in generale la città di San Casciano in Val di Pesa, sono presenti al momento più di 200 annunci per appartamenti in vendita (meno dell'1% dell'intera provincia) e il maggior numero di annunci per questa tipologia sono relativi alla zona di Cerbaia.

Relativamente alla dinamica dei prezzi, possiamo dire che negli ultimi 6 mesi i prezzi medi in tutta la città per appartamenti in vendita sono in sostanziale aumento (+5,38%).

NOVITÀ Il risultato che vedi dipende dai dati che siamo riusciti ad estrarre dall'annuncio: ottieni una stima più accuranta di questo immobile, inserendo dati più precisi.

N.B. L'Opinione di Caasa® è un servizio sperimentale realizzato tramite tecniche di Intelligenza Artificiale, fornito senza alcuna garanzia di correttezza e completezza. Leggi il disclaimer o segnalaci un problema.

IMMAGINI

IN SINTESI

Prezzo:
300.000 €
Superficie:
155 m²
Prezzo al m²:
1935 €/m²
Piano:
n.d.
Bagni:
2
Classe energetica:
G
IPE:
412.0 kwh/m²
Città:
San Casciano in Val di Pesa (FI)
Zona OMI:
B1 (CAPOLUOGO)
Indirizzo:
Pubblicato:
lun 24 marzo 2025

PROPOSTO DA:

IL GALLO DEL CHIANTI DI SILVIA COLZI

DESCRIZIONE

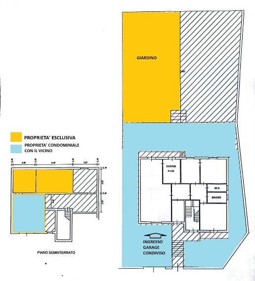
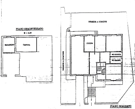
da ristrutturare con giardino con posto auto con cantina con garage con cucina abitabile da ristrutturare con balcone

GRANDE APPARTAMENTO AL PIANO TERRENO RIALZATO (MQ 130) CON INGRESSO INDIPENDENTE IN PICCOLA PALAZZINA DI SOLO DUE CONDOMINI - LIBERO SU QUATTRO LATI E MOLTO LUMINOSO - ATTUALMENTE DISPONE DI UN SOGGIORNO TRIPLO - CUCINA ABITABILE -TRE CAMERE MATRIMONIALI - DUE SERVIZI - AMPIO DISIMPEGNO NELLA ZONA NOTTE - DUE BALCONI - UNO DEI QUALI DALLA CUCINA MI PERMETTE TRAMITE TRE SCALINI DI ENTRARE NEL GIARDINO ESCLUSIVO - AL PIANO SEMINTERRATO DISPONE DI GARAGE IN CONDOMINIO CON IL VICINO - CANTINA ESCLUSIVA E MAGAZZINO ESCLUSIVO - DA RISTRUTTURARE - POSSIBILITA' DI FRAZIONAMENTO IN DUE UNITA' ABITATIVE - CLASSE G EPI: 412 kwh/m2 anno

  • immobiliare.it
  • yescasa.it
  • risorseimmobiliari.it
  • trovacasa.net