Valutazione immobiliare indipendente, accurata e gratuita
Appartamento in vendita a Pontassieve a 38.515 € (cod.6542b622)
Caasa non ha sufficienti informazioni per commentare l'appartamento in vendita a Pontassieve - 6542b622.
Analisi immobiliare
I dati in posseso di Caasa per quest'immobile sono insufficienti, inaffidabili o contraddittori per proporre un'analisi attendibile.
Mercato immobiliare a Pontassieve
Per quanto riguarda più in generale la città di Pontassieve, sono presenti al momento più di 200 annunci per
appartamenti in vendita (meno dell'1% dell'intera provincia)
e il maggior numero di annunci per questa tipologia sono relativi alla zona di Doccia.
Possiamo inoltre considerare che in tutta la città negli ultimi 6 mesi, i prezzi per appartamenti in vendita sono
in debole aumento (+2,08%).
NOVITÀ Il risultato che vedi dipende dai dati che siamo riusciti ad estrarre dall'annuncio: ottieni una stima più accuranta di questo immobile, inserendo dati più precisi.
N.B. L'Opinione di Caasa® è un servizio sperimentale realizzato tramite tecniche di Intelligenza Artificiale, fornito senza alcuna garanzia di correttezza e completezza. Leggi il disclaimer o segnalaci un problema.
IMMAGINI
IN SINTESI
PROPOSTO DA:
RE/MAX Professional
DESCRIZIONE
con cantina con terrazza con termocondizionamento con riscaldamento autonomo senza ascensore in asta giudiziaria con ascensore edificio storico
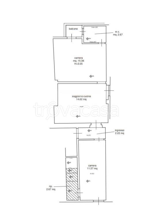
Vendita tramite asta giudiziaria - Appartamento per civile abitazione situato nel Comune di Pontassieve, in Via Ghiberti n. 121, piano terzo (quarto fuori terra) di un edificio storico composto da quattro piani fuori terra, privo di ascensore, nel quale sono presenti sei unità residenziali e due unità commerciali al piano terra. L'unità è dotata di impianto elettrico e di impianto di riscaldamento autonomo. L'edificio si trova nel centro storico di Pontassieve, in un contesto urbano consolidato e ben servito: negozi, banche, supermercati, scuole, uffici comunali e servizi principali sono raggiungibili a piedi. La stazione ferroviaria di Pontassieve dista circa 7 minuti a piedi, con collegamenti rapidi verso Firenze e la Val di Sieve. Sebbene Via Ghiberti non disponga di parcheggi residenti, sono presenti ampi parcheggi pubblici nelle immediate vicinanze, collegati anche tramite percorso pedonale e ascensore pubblico. Soluzione interessante come abitazione principale, investimento locativo o prima casa in centro, per chi desidera vivere in una posizione centrale e ben collegata, con spazi esterni e costi contenuti. L'immobile è accessibile dal portone condominiale e dalle scale comuni e si compone di tre vani compresa la cucina, oltre ingresso, servizio igienico, ripostiglio e terrazza tergale. L'immobile viene venduto dal Tribunale tramite asta giudiziaria e questo annuncio non vuole essere sostitutivo dei documenti ufficiali relativi alla vendita giudiziaria. Professione Aste è una società di consulenza che accompagna il cliente in tutto il percorso relativo all'acquisto di un immobile in asta giudiziaria, con l'unico obiettivo di massimizzare il rapporto qualità prezzo per l'utente finale. Serietà, professionalità e competenza ci contraddistinguono da sempre, rendendoci un punto di riferimento nel settore, in tutto il territorio nazionale. Chiamaci per avere tutte le informazioni necessarie, i nostri consulenti legali sono a tua disposizione per accompagnarti dalla ricerca dell'immobile fino alla conseg[…]

