Valutazione immobiliare indipendente, accurata e gratuita

L'Opinione di Caasa® per la casa indipendente a Montespertoli in zona San Quirico in Collina a 800.000 € (cod.64eb66b0)

Secondo Caasa, per la casa indipendente in zona San Quirico in Collina, la richiesta di 800.000 € è leggermente vantaggiosa rispetto agli annunci simili.

Analisi immobiliare
La casa indipendente, situata nella zona OMI R1, è proposta in vendita a 800.000 € per una superficie commerciale di 340 m² e quindi ad un prezzo per metro quadrato pari a 2352 €/m² .
Questo valore è leggeremente più conveniente di quello stimato da Caasa per immobili in vendita simili per tipologia, caratteristiche, classe energetica e localizzati nella stessa zona OMI, che è compreso tra 2.541 €/m² e 2.770 €/m². La conoscenza con buona approssimazione della localizzazione dell'immobile ha consentito di utilizzare come raffronto i dati medi elaborati esattamente nella zona OMI di appertenenza (RESTO DEL TERRITORIO) per case indipendenti (da 1.865 €/m² a 2.655 €/m²) e per case semindipendenti (da 2.065 €/m² a 2.735 €/m²). Inoltre, Caasa ha potuto affinare la stima anche con la conoscenza della classe energetica (G) oltre che dello stato dell'immobile (di recente ristrutturazione) e di alcune caratteristiche significative come il garage. Per i motivi esposti è possibile considerare un intervallo di valori accettabili per l'offerta abbastanza limitato.

Mercato immobiliare a Montespertoli
Per quanto riguarda più in generale il comune di Montespertoli, sono presenti al momento oltre 500 annunci per case indipendenti in vendita (meno del 5% dell'intera provincia) e il maggior numero di annunci per questa tipologia sono relativi alla zona di Ortimino, mentre nella zona di San Quirico in Collina è presente un numero significativamente inferiore di annunci.
La richiesta media nella zona dove sorge la casa indipendente (San Quirico in Collina) è pari a 2.275 €/m², molto vicina ai valori della zona Martignana che sono i più alti del comune .
Per quanto riguarda la dinamica dei prezzi, negli ultimi 6 mesi i prezzi medi in tutto il comune per case indipendenti in vendita sono in debole aumento (+2,25%).

NOVITÀ Il risultato che vedi dipende dai dati che siamo riusciti ad estrarre dall'annuncio: ottieni una stima più accuranta di questo immobile, inserendo dati più precisi.

N.B. L'Opinione di Caasa® è un servizio sperimentale realizzato tramite tecniche di Intelligenza Artificiale, fornito senza alcuna garanzia di correttezza e completezza. Leggi il disclaimer o segnalaci un problema.

IMMAGINI

IN SINTESI

Prezzo:
800.000 €
Superficie:
340 m²
Prezzo al m²:
2352 €/m²
Piano:
Bagni:
5
Classe energetica:
G
IPE:
396.0 kwh/m²
Città:
Montespertoli (FI)
Zona OMI:
R1 (RESTO DEL TERRITORIO)
Pubblicato:
sab 25 maggio 2024

PROPOSTO DA:

IL GALLO DEL CHIANTI DI SILVIA COLZI

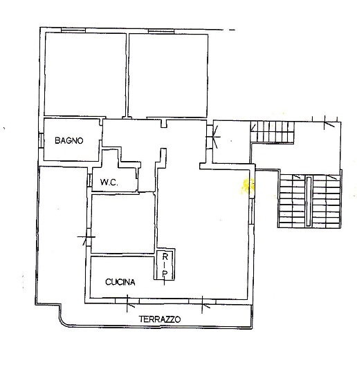
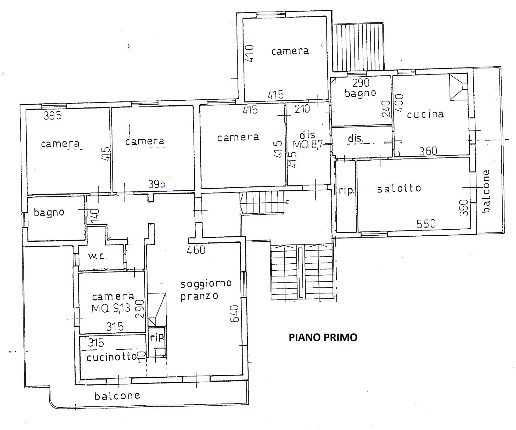
DESCRIZIONE

di recente ristrutturazione con giardino con posto auto con garage di recente ristrutturazione

COSTITUITO ATTUALMENTE DA 4 APPARTAMENTI - DUE AL PIANO TERRENO E DUE AL PIANO PRIMO - CIASCUNO CON INGRESSO INDIPENDENTE E CIRCONDATI DA AMPIO E PANORAMICO GIARDINO - TRE APPARTAMENTI SONO DI CIRCA 100 MQ CIASCUNO - AL PIANO TERRENO IL PIU' PICCOLO DI 40 MQ E' PERO' DOTATO DI AMPIO GARAGE E DUE STANZE ACCESSORIE - L'IMMOBILE E' ABITABILE MA NECESSITA DI ALCUNI LAVORI DI RISTRUTTURAZIONE - NELLA VENDITA E' COMPRESO INOLTRE UN TERRENO ADIACENTE DI CIRCA 8000 MQ COLTIVATO AD OLIVETA - CLASSE G EPI: 396 kwh/m2 anno

  • immobiliare.it
  • yescasa.it