Valutazione immobiliare indipendente, accurata e gratuita

Casa indipendente in vendita a Lastra a Signa in zona Carcheri a 385.000 € (cod.64eca440)

Caasa non ha sufficienti informazioni per commentare la casa indipendente a Lastra a Signa in zona Carcheri - 64eca440.

Analisi immobiliare
I dati in posseso di Caasa per quest'immobile sono insufficienti, inaffidabili o contraddittori per proporre un'analisi attendibile.
Mercato immobiliare a Lastra a Signa
Per quanto riguarda più in generale la città di Lastra a Signa, sono presenti al momento più di 300 annunci per case indipendenti in vendita (meno del 5% dell'intera provincia) e il maggior numero di annunci per questa tipologia sono relativi alla zona di Malmantile, mentre la zona di Carcheri risulta molto meno attiva considerando il numero di annunci presenti.
La richiesta media nella zona dove sorge la casa indipendente (Carcheri) è pari a 2.685 €/m², molto vicina ai valori della zona Malmantile che sono i più alti della città .
Per quanto riguarda la dinamica dei prezzi, negli ultimi 6 mesi i prezzi medi in tutta la città per case indipendenti in vendita sono in leggero aumento (+3,02%).

NOVITÀ Il risultato che vedi dipende dai dati che siamo riusciti ad estrarre dall'annuncio: ottieni una stima più accuranta di questo immobile, inserendo dati più precisi.

N.B. L'Opinione di Caasa® è un servizio sperimentale realizzato tramite tecniche di Intelligenza Artificiale, fornito senza alcuna garanzia di correttezza e completezza. Leggi il disclaimer o segnalaci un problema.

IMMAGINI

IN SINTESI

Prezzo:
385.000 €
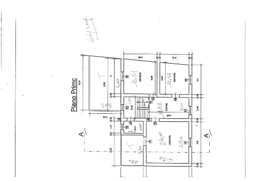
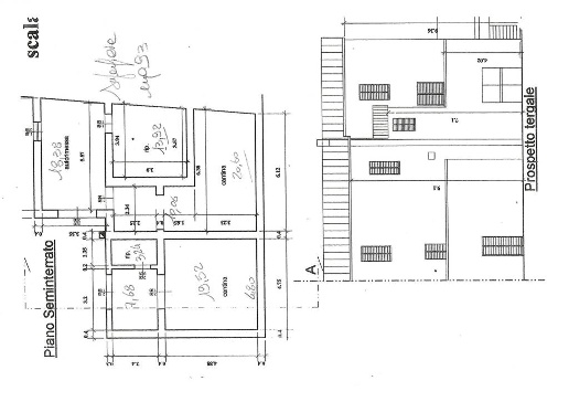
Superficie:
213 m²
Prezzo al m²:
1807 €/m²
Piano:
terra
Bagni:
2
Classe energetica:
n.d.
Città:
Lastra a Signa (FI)
Zona OMI:
R1 (RESTO DEL TERRITORIO)
Indirizzo:
Pubblicato:
ven 4 luglio 2025

PROPOSTO DA:

STUDIO IMMOBILIARE LANDI

DESCRIZIONE

con giardino con cantina con terrazza con posto auto con garage con caminetto

Rif. T-554) In zona collinare Ginestra Fiorentina terra tetto angolare libero su 3 lati di recente restauro, (possibilità divisione in 2 u.i.), di circa 213 mq e di 9 vani, posto al piano seminterrato, piano terra e 1° piano, composto al piano sotto […]

  • yescasa.it