Valutazione immobiliare indipendente, accurata e gratuita
L'Opinione di Caasa® per la casa indipendente in vendita a Lastra a Signa in zona Malmantile a 550.000 € (cod.63eb6686)
Secondo Caasa, per la casa indipendente a Lastra a Signa Malmantile, la richiesta di 550.000 € è significativamente svantaggiosa rispetto agli annunci simili.
Analisi immobiliare
La casa indipendente, situata nella zona OMI E2, è proposta in vendita a
550.000 € per una
superficie commerciale di
140 m² e quindi ad un prezzo per metro quadrato pari a
3928 €/m²
.
Questo prezzo
è meno vantaggioso di quello stimato da Caasa per immobili in vendita simili per tipologia e caratteristiche e localizzati nella stessa zona OMI, che è compreso tra
2.909 €/m² e
3.190 €/m².
Grazie alla conoscenza con buona approssimazione della localizzazione dell'immobile, è stato possibile utilizzare come raffronto i dati medi elaborati esattamente nella zona OMI di appertenenza (MALMANTILE - QUATTRO STRADE) per case indipendenti (da 1.830 €/m² a 3.710 €/m²) e per ville (da 1.725 €/m² a 3.235 €/m²). Anche se Caasa non è riuscita a determinare la classe energetica, ad affinare la stima hanno contribuito anche lo stato dell'immobile (di nuova costruzione) e la presenza di alcune caratteristiche significative come il posto auto o la disponibilità di una cantina. In virtù di queste considerazioni l'intervallo dei valori accettabili per l'offerta è relativamente limitato.
Mercato immobiliare a Lastra a Signa
Per quanto riguarda più in generale la città di Lastra a Signa, sono presenti al momento più di 300 annunci per
case indipendenti in vendita (meno del 5% dell'intera provincia)
e il maggior numero di annunci per questa tipologia sono relativi proprio alla zona di Malmantile.
La richiesta media nella zona dove sorge la casa indipendente (Malmantile) è pari a
2.655 €/m², molto vicina ai valori della zona Ginestra Fiorentina che sono i più alti della città .
Possiamo inoltre considerare che in tutta la città negli ultimi 6 mesi, i prezzi per case indipendenti in vendita sono
sostanzialmente stabili (-0,94%).
NOVITÀ Il risultato che vedi dipende dai dati che siamo riusciti ad estrarre dall'annuncio: ottieni una stima più accuranta di questo immobile, inserendo dati più precisi.
N.B. L'Opinione di Caasa® è un servizio sperimentale realizzato tramite tecniche di Intelligenza Artificiale, fornito senza alcuna garanzia di correttezza e completezza. Leggi il disclaimer o segnalaci un problema.
IMMAGINI
IN SINTESI
PROPOSTO DA:
Immobiliare Attuttotondo
DESCRIZIONE
di nuova costruzione con giardino con cantina con posto auto di recente ristrutturazione con cucina abitabile di nuova costruzione
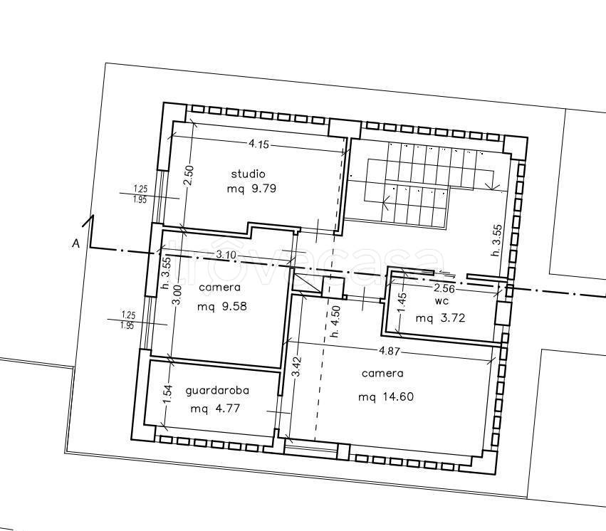
Lastra a Signa - Malmantile Complesso di completa riqualificazione, in strada residenziale silenziosa, vicina a tutti i servizi. Fienile libero su quattro lati, composto da sei vani oltre accessori, giardino posto auto. Al piano terra è composto da salone doppio, sala da pranzo, cucina abitabile, bagno e ripostiglio. Al piano superiore ci sono le tre camere, bagno, guardaroba. La ristrutturazione sarà radicale, inizio lavori aprile 2025, consegna giugno 2026. Capitolato di alto livello con finiture di pregio, impianti di ultima generazione con caldaia a condensazione oppure con pompa di calore. Le immagini sono di progetto pertanto da ritenersi indicativo. APE a fine lavori. Ulteriori informazioni ai contatti di agenzia



