Valutazione immobiliare indipendente, accurata e gratuita
Appartamento a Greve in Chianti in zona San Polo in Chianti a 245.000 € (cod.64e96328)
Caasa non ha sufficienti informazioni per commentare l'appartamento a Greve in Chianti San Polo in Chianti - 64e96328.
Analisi immobiliare
I dati in posseso di Caasa per quest'immobile sono insufficienti, inaffidabili o contraddittori per proporre un'analisi attendibile.
Mercato immobiliare a Greve in Chianti
Per quanto riguarda più in generale il comune di Greve in Chianti, sono presenti al momento più di 300 annunci per
appartamenti in vendita (meno del 5% dell'intera provincia)
e il maggior numero di annunci per questa tipologia sono relativi alla zona di Strada in Chianti, mentre nella zona di San Polo in Chianti è presente un numero significativamente inferiore di annunci.
La richiesta media nella zona dove sorge l'appartamento (San Polo in Chianti) è pari a
2.600 €/m², molto vicina ai valori della zona Strada in Chianti che sono i più alti del comune .
Per quanto riguarda la dinamica dei prezzi, negli ultimi 6 mesi i prezzi medi in tutto il comune per appartamenti in vendita sono
sostanzialmente stabili (+0,66%).
NOVITÀ Il risultato che vedi dipende dai dati che siamo riusciti ad estrarre dall'annuncio: ottieni una stima più accuranta di questo immobile, inserendo dati più precisi.
N.B. L'Opinione di Caasa® è un servizio sperimentale realizzato tramite tecniche di Intelligenza Artificiale, fornito senza alcuna garanzia di correttezza e completezza. Leggi il disclaimer o segnalaci un problema.
IMMAGINI
IN SINTESI
PROPOSTO DA:
IMMOBILIARE MERCIAI
DESCRIZIONE
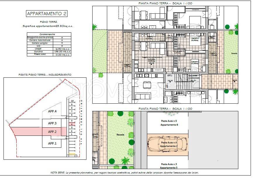
di nuova costruzione con giardino con terrazza con posto auto con angolo cottura di nuova costruzione
San Polo in Chianti, a soli 15 minuti dalla città di Firenze, in accogliente località adagiata fra le colline e fornita di tutti i servizi, nuova realizzazione di appartamenti in piccolo edificio su due livelli. L'edificio, in bella posizione a solatio, leggermente rialzato su una collinetta naturale e circondato dal verde della campagna, si compone da quattro appartamenti al piano terreno con giardino e quattro appartamenti al primo piano con ampie terrazze. Nell'appartamento centrale al piano primo di circa 75mq, troviamo un ampio soggiorno con angolo cottura con accesso all'ampia loggia/terrazza frontale, un disimpegno che divide la zona giorno dalla zona notte, due camere (entrambe con accesso diretto alla loggia tergale) e servizio finestrato. Un posto auto di proprietà esclusiva. L'intera costruzione verrà realizzata con il rispetto di tutte le norme di risparmio energetico di ultima generazione (fotovoltaico, termico solare, cappotto termico) e gli appartamenti avranno un alta efficienza energetica. Ottime le finiture e le caratteristiche di tutta la costruzione affidata a ditta affermata e con comprovata esperienza nel settore. Possibilità, ancora in fase di progetto, di personalizzazione degli spazi interni e delle finiture tutte. L'immobile giusto per un progetto di vita. Le immagini rendering rappresentano solo delle ipotesi di arredamento. La nostra agenzia, presente sul mercato dal 1976, vanta una lunga esperienza nella vendita e negli affitti di qualunque tipo di immobili: appartamenti, monolocali, bilocali, mini appartamenti, villette, ville, rustici, casali, coloniche, porzioni di coloniche, immobili di prestigio uffici, negozi, fondi artigianali, commerciali, industriali e magazzini. Ci troviamo in Piazza Umberto I a Grassina e dopo tanti anni sul campo siamo esperti nel territorio di Grassina, nel Comune di Bagno a Ripoli, nella zona del Chianti, nella città e nella provincia di Firenze

