Valutazione immobiliare indipendente, accurata e gratuita
Appartamento in vendita a Gambassi Terme in zona Badia a Cerreto a 375.000 € (cod.64fdb583)
Caasa non ha sufficienti informazioni per commentare l'appartamento a Gambassi Terme Badia a Cerreto - 64fdb583.
Analisi immobiliare
I dati in posseso di Caasa per quest'immobile sono insufficienti, inaffidabili o contraddittori per proporre un'analisi attendibile.
Mercato immobiliare a Gambassi Terme
Per quanto riguarda più in generale il comune di Gambassi Terme, sono presenti al momento più di 300 annunci per
appartamenti in vendita (meno del 5% dell'intera provincia)
e il maggior numero di annunci per questa tipologia sono relativi proprio alla zona di Badia a Cerreto.
Per quanto riguarda la richiesta media in zona Badia a Cerreto, dove sorge l'appartamento, essa è pari a circa
2.385 €/m² per appartamenti in vendita.
La dinamica dei prezzi in tutto il comune mostra che negli ultimi 6 mesi, i prezzi per appartamenti in vendita sono
in deciso aumento (+7,76%).
NOVITÀ Il risultato che vedi dipende dai dati che siamo riusciti ad estrarre dall'annuncio: ottieni una stima più accuranta di questo immobile, inserendo dati più precisi.
N.B. L'Opinione di Caasa® è un servizio sperimentale realizzato tramite tecniche di Intelligenza Artificiale, fornito senza alcuna garanzia di correttezza e completezza. Leggi il disclaimer o segnalaci un problema.
IMMAGINI
IN SINTESI
PROPOSTO DA:
AGENZIA IMMOBILIARE ROMANO DI ROMANO MAURO, SONIA & C SAS
VIA MONTEGRAPPA, 127, Poggibonsi (SI)
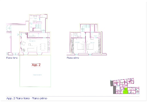
DESCRIZIONE
di recente ristrutturazione con giardino con posto auto di recente ristrutturazione con angolo cottura edificio storico
Appartamento con giardino privato in villa storica – Tra Certaldo e Gambassi Terme. In splendida posizione panoramica, a pochissima distanza dai principali servizi, all' interno di una villa storica in corso di ristrutturazione, proponiamo in vendita terratetto con giardino privato. L'abitazione è composta da: ampio soggiorno/pranzo con angolo cottura, servizio e due ripostigli al piano terreno; due camere e due bagni al piano primo ed ultimo. Completano la proprietà posti auto esclusivi e l'accesso a una piscina condominiale, perfetta per godersi momenti di relax immersi nella tranquillità delle colline toscane. Classe Energetica: A



