Valutazione immobiliare indipendente, accurata e gratuita
Appartamento in vendita a Fucecchio in zona Querce a 38.250 € (cod.658eaa73)
Caasa non ha sufficienti informazioni per commentare l'appartamento in vendita a Fucecchio in zona Querce - 658eaa73.
Analisi immobiliare
I dati in posseso di Caasa per quest'immobile sono insufficienti, inaffidabili o contraddittori per proporre un'analisi attendibile.
Mercato immobiliare a Fucecchio
Per quanto riguarda più in generale la città di Fucecchio, sono presenti al momento quasi 500 annunci per
appartamenti in vendita (meno del 5% dell'intera provincia)
e il maggior numero di annunci per questa tipologia sono relativi alla zona di San Pierino, mentre nella zona di Querce è presente un numero significativamente inferiore di annunci.
La richiesta media nella zona dove sorge l'appartamento (Querce) è pari a
1.325 €/m² che la rende la più economica della città .
La dinamica dei prezzi in tutta la città mostra che negli ultimi 6 mesi, i prezzi per appartamenti in vendita sono
in leggero aumento (+2,88%).
NOVITÀ Il risultato che vedi dipende dai dati che siamo riusciti ad estrarre dall'annuncio: ottieni una stima più accuranta di questo immobile, inserendo dati più precisi.
N.B. L'Opinione di Caasa® è un servizio sperimentale realizzato tramite tecniche di Intelligenza Artificiale, fornito senza alcuna garanzia di correttezza e completezza. Leggi il disclaimer o segnalaci un problema.
IMMAGINI
IN SINTESI
PROPOSTO DA:
Centro Aste Firenze
DESCRIZIONE
di recente costruzione con giardino con cantina di recente costruzione in asta giudiziaria
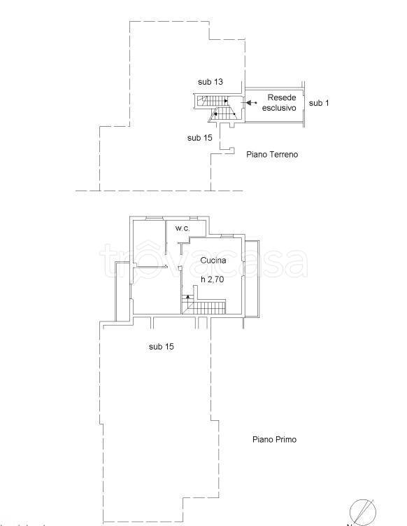
Asta a Fucecchio (FI) [SY92138] Via dei Sorini Querce, 32, 50054 Fucecchio FI, Italia rge 42/2009 Abitazione sita in Fucecchio, in località la Querce composta da: piano terra, con resede antistante la porta di ingresso coperta con tettoia, ingresso, […]
