Valutazione immobiliare indipendente, accurata e gratuita
L'Opinione di Caasa® per l'appartamento in vendita a Firenze in zona Campo di Marte a 360.000 € (cod.6581c5ff)
Secondo Caasa, per l'appartamento a Firenze in zona Campo di Marte, la richiesta di 360.000 € è leggermente vantaggiosa rispetto agli annunci simili.
Analisi immobiliare
L'appartamento è proposto in vendita a
360.000 € per una
superficie commerciale di
75 m² e quindi ad un prezzo per metro quadrato pari a
4800 €/m²
.
Tale valore
è leggeremente più conveniente di quello stimato da Caasa per immobili in vendita simili per tipologia, caratteristiche, classe energetica e zona, che è compreso tra
5.108 €/m² e
5.438 €/m².
Vista la posizione dell'appartamento si sono utilizzati in raffronto i valori medi nelle zone limitrofe e particolarmente le richieste in vendita per appartamenti in zona Campo di Marte (da 3.900 €/m² a 5.655 €/m²) e per trivani in zona Campo di Marte (da 3.940 €/m² a 5.490 €/m²). Ad affinare la stima ha contribuito anche la classe energetica (E) oltre alla conoscenza dello stato dell'immobile (di recente ristrutturazione che però è in parte contraddittorio con la classe energetica) e di alcune caratteristiche significative come la presenza dell'ascensore. Per queste ragioni i valori accettabili per l'offerta costituiscono un intervallo relativamente limitato.
Mercato immobiliare a Firenze
Per quanto riguarda più in generale la città di Firenze, sono presenti al momento ben oltre 10.000 annunci per
appartamenti in vendita (quasi la metà dell'intera provincia)
e il maggior numero di annunci per questa tipologia sono relativi alla zona di Centro Storico, mentre nella zona di Campo di Marte è presente un numero significativamente inferiore di annunci.
La richiesta media nella zona dove sorge l'appartamento (Campo di Marte) è pari a
4.745 €/m², molto vicina ai valori della zona Centro San Niccolò che sono i più alti della città .
La dinamica dei prezzi in tutta la città mostra che negli ultimi 6 mesi, i prezzi per appartamenti in vendita sono
in aumento (+4,54%).
NOVITÀ Il risultato che vedi dipende dai dati che siamo riusciti ad estrarre dall'annuncio: ottieni una stima più accuranta di questo immobile, inserendo dati più precisi.
N.B. L'Opinione di Caasa® è un servizio sperimentale realizzato tramite tecniche di Intelligenza Artificiale, fornito senza alcuna garanzia di correttezza e completezza. Leggi il disclaimer o segnalaci un problema.
IMMAGINI
IN SINTESI
PROPOSTO DA:
intermediazioni immobiliari-elena cantinelli
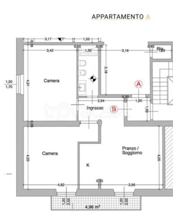
DESCRIZIONE
di recente ristrutturazione con terrazza di recente ristrutturazione con ascensore con balcone con angolo cottura
SAN GERVASIO In bella palazzina al piano secondo con ascensore proponiamo ottimo trilocale con balcone , doppia esposizione composto da un soggiorno con angolo cottura con accesso al balcone sulla piazza ,disimpgno due camere e un bagno.termocentrale .predisposizione aria condizionata. appena ristrutturato. info in agenzia .RIF C4064 L' agenzia offre servizi di assistenza ai propri clienti nella consulenza sull'investimento immobiliare, si affianca della collaborazione di validi professionisti per : Relazione tecnica redatta da un tecnico iscritto all albo necessaria al trasferimento Perizia energetica (ACE) Assistenza fino al rogito notarile Visure ipotecarie Visure catastali Richiesta documentazione catastale, notarile e condominiale Stesura della perizia estimativa Consulenze tecnico-finanziarie avvalendosi di Istituti di Credito che offrono le migliori condizioni sul mercato Redazione contratti di locazione e successivi adempimenti a a a tel 335 7889353 intermediazionimmobiliari@hotmail.it L' agenzia offre servizi di assistenza ai propri clienti nella consulenza sull'investimento immobiliare, si affianca della collaborazione di validi professionisti per : Relazione tecnica redatta da un tecnico iscritto all albo necessaria al trasferimento Perizia energetica (ACE) Assistenza fino al rogito notarile Visure ipotecarie Visure catastali Richiesta documentazione catastale, notarile e condominiale Stesura della perizia estimativa Consulenze tecnico-finanziarie avvalendosi di Istituti di Credito che offrono le migliori condizioni sul mercato Redazione contratti di locazione e successivi adempimenti a a a tel 335 7889353 intermediazionimmobiliari@hotmail.it L' agenzia offre servizi di assistenza ai propri clienti nella consulenza sull'investimento immobiliare, si affianca della collaborazione di validi professionisti per : Relazione tecnica redatta da un tecnico iscritto all albo necessaria al trasferimento Perizia energetica (ACE) Assistenza fino al rogito notarile Visure ipotecarie Visure catastali Richiest[…]

