Valutazione immobiliare indipendente, accurata e gratuita
Appartamento in vendita a Firenze in zona Bellosguardo a 1.200.000 € (cod.657b887e)
Caasa non ha sufficienti informazioni per commentare l'appartamento a Firenze in zona Bellosguardo - 657b887e.
Analisi immobiliare
I dati in posseso di Caasa per quest'immobile sono insufficienti, inaffidabili o contraddittori per proporre un'analisi attendibile.
Mercato immobiliare a Firenze
Per quanto riguarda più in generale la città di Firenze, sono presenti al momento ben oltre 10.000 annunci per
appartamenti in vendita (quasi il 40% dell'intera provincia)
e il maggior numero di annunci per questa tipologia sono relativi alla zona di Centro Storico, mentre la zona di Bellosguardo risulta molto meno attiva considerando il numero di annunci presenti.
La richiesta media nella zona dove sorge l'appartamento (Bellosguardo pressi Via del Monasteraccio) è pari a
5.665 €/m², molto vicina ai valori della zona Centro San Niccolò che sono i più alti della città .
Possiamo inoltre considerare che in tutta la città negli ultimi 6 mesi, i prezzi per appartamenti in vendita sono
in aumento (+4,52%).
NOVITÀ Il risultato che vedi dipende dai dati che siamo riusciti ad estrarre dall'annuncio: ottieni una stima più accuranta di questo immobile, inserendo dati più precisi.
N.B. L'Opinione di Caasa® è un servizio sperimentale realizzato tramite tecniche di Intelligenza Artificiale, fornito senza alcuna garanzia di correttezza e completezza. Leggi il disclaimer o segnalaci un problema.
IMMAGINI
IN SINTESI
PROPOSTO DA:
RE/MAX Professional
DESCRIZIONE
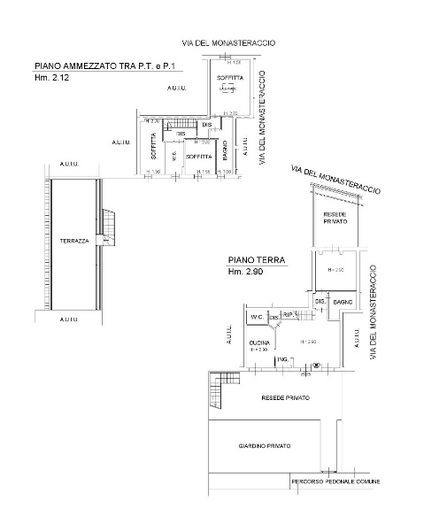
con cantina con posto auto con termocondizionamento con giardino con riscaldamento autonomo edificio storico per vacanza
Si propone in vendita, in meravigliosa villa storica immersa nel verde delle colline fiorentine di Marignolle, a pochi minuti dal centro, lussuoso appartamento su due livelli con splendido giardino all'italiana e ingresso indipendente. Attualmente l'immobile è composto come segue: ingresso, ampio open space con cucina a vista, luminoso e ben organizzato, dove la zona relax si affaccia direttamente sul giardino frontale, sul retro, camera padronale con bagno en suite e armadiature su misura, con uscita sul giardino tergale, dove un melograno regala ombra e tranquillità. Completano il piano un comodo bagno di servizio e un pratico ripostiglio. Il primo piano ospita due spaziose camere da letto ed uno studio, un disimpegno attrezzato con guardaroba a muro e due bagni, di cui uno realizzato con raffinate finiture in marmo bianco.Completano la proprietà una cantina e quattro posti auto. Riscaldamento autonomo. Questa dimora è perfetta per una famiglia alla ricerca di privacy ed eleganza, o per chi desidera vivere a stretto contatto con la natura senza rinunciare alla vicinanza alla città. Marignolle è una delle zone più ambite di Firenze, tra Soffiano, Galluzzo e vicinissimo al centro, dove storia, paesaggio e quiete convivono in perfetto equilibrio. Un luogo da vivere ogni giorno come fosse una vacanza senza rinunciare ai servizi e ai comfort della città. Hai una casa da vendere? Da DimorEtica abbiamo una rete di clienti qualificati, già pronti ad acquistare. Ti offriamo una valutazione gratuita e un supporto professionale ed etico in ogni fase della vendita. E per ogni trattativa conclusa, piantiamo un albero. Seguici sui nostri social: Instagram: @dimoretica TikTok: @dimoretica Facebook: DimorEtica Immobiliare EPI: 3 kwh/m2 anno



