Valutazione immobiliare indipendente, accurata e gratuita
Negozio in vendita a Firenze in zona Bellariva a 100.000 € (cod.65740ec4)
Caasa non ha sufficienti informazioni per commentare il negozio in vendita a Firenze in zona Bellariva - 65740ec4.
Analisi immobiliare
I dati in posseso di Caasa per quest'immobile sono insufficienti, inaffidabili o contraddittori per proporre un'analisi attendibile.
Mercato immobiliare a Firenze
Per quanto riguarda più in generale la città di Firenze, sono presenti al momento ben oltre 2.000 annunci per
negozi in vendita (quasi la metà dell'intera provincia)
e il maggior numero di annunci per questa tipologia sono relativi alla zona di Centro Storico, mentre la zona di Bellariva risulta molto meno attiva considerando il numero di annunci presenti.
Vedi altre informazioni direttamente su
Mercato-Immobiliare.info
NOVITÀ Il risultato che vedi dipende dai dati che siamo riusciti ad estrarre dall'annuncio: ottieni una stima più accuranta di questo immobile, inserendo dati più precisi.
N.B. L'Opinione di Caasa® è un servizio sperimentale realizzato tramite tecniche di Intelligenza Artificiale, fornito senza alcuna garanzia di correttezza e completezza. Leggi il disclaimer o segnalaci un problema.
IMMAGINI
IN SINTESI
PROPOSTO DA:
lloyd-immobiliare-sas
DESCRIZIONE
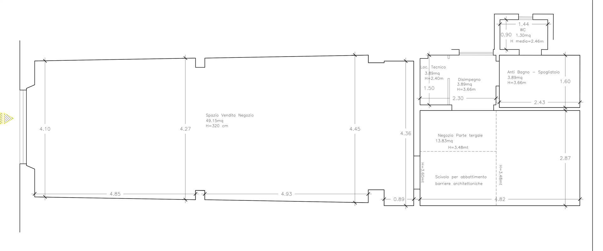
PIAZZA ALBERTI ADIACENZE SI PROPONE ADATTO INVESTIMENTO, FONDO COMMERCIALE CON VETRINA SULLA VIA, DESTINAZIONE USO NEGOZIO, ATTUALMENTE LOCATO CON CONTRATTO IN SCADENZA DEFINITIVA A DICEMBRE 2028, BUONA RENDITA ANNUALE. IL FONDO SI PRESENTA IN OTTIME CONDIZIONI, CIRCA 60MQ DESTINATI ALLA VENDITA OLTRE AL RETRO CON SPAZI PER MAGAZZINO E IL SERVIZIO. È SITUATO IN UNA ZONA RESIDENZIALE, IN VIA ARETINA IN PROSSIMITÀ DI PIAZZA ALBERTI. CONTATTACI PER VISITARE L'IMMOBILE 0557189265 WAPP 3201929897 SEGUICI SU WWW.FACEBOOK.COM/LLOYDAGENZIAIMMOBILIARE/ RIF.7754



