Valutazione immobiliare indipendente, accurata e gratuita
Casa indipendente in vendita a Firenze in zona Cintoia a 328.000 € (cod.656ace79)
Caasa non ha sufficienti informazioni per commentare la casa indipendente a Firenze in zona Cintoia - 656ace79.
Analisi immobiliare
I dati in posseso di Caasa per quest'immobile sono insufficienti, inaffidabili o contraddittori per proporre un'analisi attendibile.
Mercato immobiliare a Firenze
Per quanto riguarda più in generale la città di Firenze, sono presenti al momento ben oltre 5.000 annunci per
case indipendenti in vendita (meno di un terzo dell'intera provincia)
e il maggior numero di annunci per questa tipologia sono relativi alla zona di Centro Storico, mentre la zona di Cintoia risulta molto meno attiva considerando il numero di annunci presenti.
La richiesta media nella zona dove sorge la casa indipendente (Cintoia) è pari a
3.770 €/m², non troppo distante dai valori medi cittadini per case indipendenti in vendita.
Relativamente alla dinamica dei prezzi, possiamo dire che negli ultimi 6 mesi i prezzi medi in tutta la città per case indipendenti in vendita sono
in leggero aumento (+2,45%).
NOVITÀ Il risultato che vedi dipende dai dati che siamo riusciti ad estrarre dall'annuncio: ottieni una stima più accuranta di questo immobile, inserendo dati più precisi.
N.B. L'Opinione di Caasa® è un servizio sperimentale realizzato tramite tecniche di Intelligenza Artificiale, fornito senza alcuna garanzia di correttezza e completezza. Leggi il disclaimer o segnalaci un problema.
IMMAGINI
IN SINTESI
PROPOSTO DA:
Immobili Toscani di Guasti Silvio e C. s.n.c.
Via Masaccio, 115, Firenze (FI)
Verificata da Caasa®
DESCRIZIONE
di recente ristrutturazione di recente ristrutturazione con posto auto
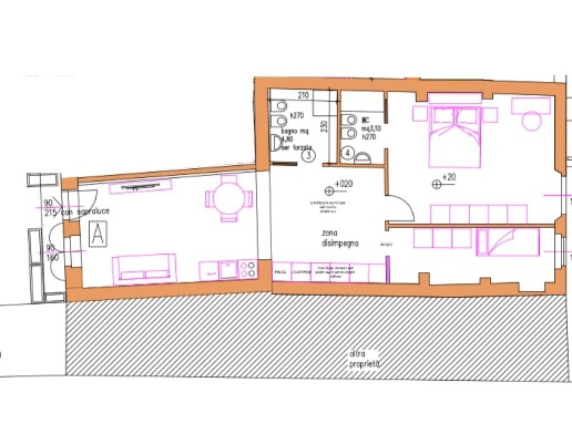
ITSN2479 – Isolotto, in traversa tranquilla proponiamo in FASE di COMPLETA RISTRUTTURAZIONE, terratetto di circa 87 mq con ingresso INDIPENDENTE. L'immobile è composto da AMPIA ZONA LIVING con cucina a VISTA, AMPIO DISIMPEGNO ideale per una COMODA AR […]
