Valutazione immobiliare indipendente, accurata e gratuita
Casa indipendente in vendita a Firenze in zona Campo di Marte a 1.200.000 € (cod.6550149c)
Caasa non ha sufficienti informazioni per commentare la casa indipendente a Firenze in zona Campo di Marte - 6550149c.
Analisi immobiliare
I dati in posseso di Caasa per quest'immobile sono insufficienti, inaffidabili o contraddittori per proporre un'analisi attendibile.
Mercato immobiliare a Firenze
Per quanto riguarda più in generale la città di Firenze, sono presenti al momento ben oltre 5.000 annunci per
case indipendenti in vendita (meno di un terzo dell'intera provincia)
e il maggior numero di annunci per questa tipologia sono relativi alla zona di Centro Storico, mentre nella zona di Campo di Marte è presente un numero significativamente inferiore di annunci.
La richiesta media nella zona dove sorge la casa indipendente (Campo di Marte) è pari a
4.750 €/m², molto vicina ai valori della zona Pian dei Giullari che sono i più alti della città .
Per quanto riguarda la dinamica dei prezzi, negli ultimi 6 mesi i prezzi medi in tutta la città per case indipendenti in vendita sono
in leggero aumento (+2,28%).
NOVITÀ Il risultato che vedi dipende dai dati che siamo riusciti ad estrarre dall'annuncio: ottieni una stima più accuranta di questo immobile, inserendo dati più precisi.
N.B. L'Opinione di Caasa® è un servizio sperimentale realizzato tramite tecniche di Intelligenza Artificiale, fornito senza alcuna garanzia di correttezza e completezza. Leggi il disclaimer o segnalaci un problema.
IMMAGINI
IN SINTESI
DESCRIZIONE
di recente ristrutturazione con terrazza con cantina di recente ristrutturazione con posto auto di recente costruzione con giardino con ascensore da ristrutturare con cucina abitabile con garage
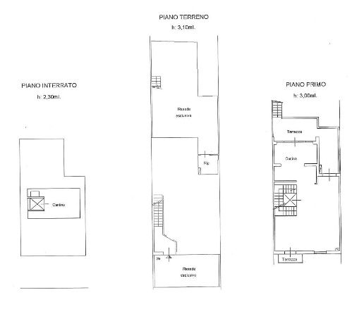
Esclusivo terra-tetto in zona Le Cure con garage e giardino Descrizione Villetta a schiera ristrutturata, situata in zona de Le Cure, a Firenze. L'edificio, che si sviluppa su quattro livelli con ascensore interno, è una costruzione recente (2003), quindi con caratteristiche moderne ed efficienti. La villetta si presenta con una facciata elegante dove troviamo l'ingresso indipendente e quello carrabile per accedere al grande garage; al piano terreno troviamo una parte già ristrutturata, che crea un piccolo appartamento indipendente con cucina, bagno e cameretta (per persone di servizio o altre esigenze) e accesso al giardino. Al primo piano troviamo un ampio soggiorno con ampie finestre, cucina abitabile con accesso a una grane terrazza che affaccia sul giardino privato, raggiungibile anche tramite una scala. Al secondo piano troviamo una camera con cabina armadio e bagno en-suite, altra camera, bagno e lavanderia; al terzo piano troviamo tre ampie camere e un ulteriore bagno. Ogni Piano ha accesso a grandi terrazze abitabili in parte anche coperte. Garage e cantina: Al piano seminterrato si trova un garage spazioso, ideale per un'auto, con possibilità di ulteriore stoccaggio. La cantina, ben rifinita, è perfetta per conservare vini o altri oggetti, offrendo una buona capienza senza compromettere lo spazio utile al piano superiore. Location Situata a Le Cure, una zona residenziale ben servita e a pochi passi dalle principali attrazioni turistiche e commerciali di Firenze, questa villetta gode di un'ottima posizione: si trova a breve distanza dal centro città, ma allo stesso tempo lontano dal caos cittadino, immersa in un contesto tranquillo. Il trasporto pubblico è facilmente accessibile, rendendo gli spostamenti comodi. Contatti Per informazioni su questo immobile contattare la Dott.ssa Tiffany Stefanelli al 324 8179070 REVIVO è una società immobiliare multiservice che opera nei settori dell'intermediazione, della consulenza, della costruzione e della ristrutturazione di immobili residenziali, commercial[…]





