Valutazione immobiliare indipendente, accurata e gratuita
L'Opinione di Caasa® per l'appartamento in vendita a Firenze in zona La Lastra a 698.000 € (cod.6505662d)
Secondo Caasa, per l'appartamento a Firenze in zona La Lastra, la richiesta di 698.000 € è equilibrata rispetto agli annunci simili.
Analisi immobiliare
L'appartamento, situato nella zona OMI C5, è proposto in vendita a
698.000 € per una
superficie commerciale di
107 m² e quindi ad un prezzo per metro quadrato pari a
6523 €/m²
.
Tale prezzo
è perfettamente allineato a quello stimato da Caasa per immobili in vendita simili per tipologia, caratteristiche, classe energetica e localizzati nella stessa zona OMI, che è compreso tra
6.249 €/m² e
6.846 €/m².
La conoscenza con buona approssimazione della localizzazione dell'immobile ha consentito di utilizzare come raffronto i dati medi elaborati esattamente nella zona OMI di appertenenza (LE CURE) per appartamenti (da 3.665 €/m² a 6.525 €/m²) e per pentavani (da 3.120 €/m² a 5.730 €/m²). Inoltre, Caasa ha potuto affinare la stima anche con la conoscenza della classe energetica (A) oltre che dello stato dell'immobile (di nuova costruzione) e di alcune caratteristiche significative come la disponibilità di una cantina o il posto auto. Per i motivi esposti i valori accettabili per l'offerta costituiscono un intervallo abbastanza limitato.
Mercato immobiliare a Firenze
Per quanto riguarda più in generale la città di Firenze, sono presenti al momento ben oltre 10.000 annunci per
appartamenti in vendita (quasi il 40% dell'intera provincia)
e il maggior numero di annunci per questa tipologia sono relativi alla zona di Centro Storico, mentre la zona di La Lastra risulta molto meno attiva considerando il numero di annunci presenti.
La richiesta media nella zona dove sorge l'appartamento (La Lastra) è pari a
5.140 €/m², molto vicina ai valori della zona Centro San Niccolò che sono i più alti della città .
Relativamente alla dinamica dei prezzi, possiamo dire che negli ultimi 6 mesi i prezzi medi in tutta la città per appartamenti in vendita sono
in aumento (+4,52%).
NOVITÀ Il risultato che vedi dipende dai dati che siamo riusciti ad estrarre dall'annuncio: ottieni una stima più accuranta di questo immobile, inserendo dati più precisi.
N.B. L'Opinione di Caasa® è un servizio sperimentale realizzato tramite tecniche di Intelligenza Artificiale, fornito senza alcuna garanzia di correttezza e completezza. Leggi il disclaimer o segnalaci un problema.
IMMAGINI
IN SINTESI
PROPOSTO DA:
Immobiliare Il Fiorino di Ivan Silvestro
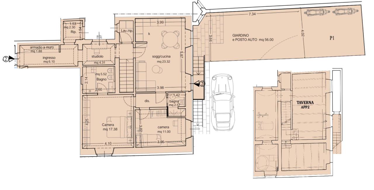
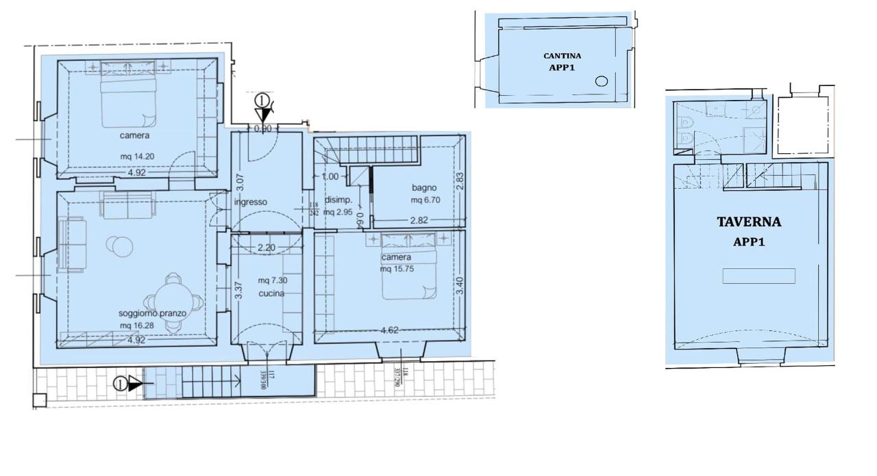
DESCRIZIONE
di nuova costruzione con cantina di recente ristrutturazione con posto auto con termocondizionamento con giardino di nuova costruzione con riscaldamento autonomo
In una delle zone più prestigiose di Firenze, precisamente in Libertà, proponiamo in vendita un elegante appartamento di 107 mq situato al piano rialzato di un contesto signorile. L'immobile, in fase di accurata ristrutturazione, è composto da 5 vani ben distribuiti su due livelli, offrendo un'ottima vivibilità. All'interno troverete una cucina semi abitabile, due camere da letto matrimoniali e due bagni, ideali per famiglie o per chi desidera avere spazio in più. L'appartamento è dotato di riscaldamento autonomo e predisposizione per impianto di condizionamento, garantendo il massimo comfort in ogni stagione. Completano la proprietà una taverna di 42 mq, collegata all'appartamento, e una cantina di 20 mq al piano seminterrato, perfette per creare ulteriori spazi da personalizzare secondo le proprie esigenze. Inoltre, è incluso un posto auto di 13 mq al piano terra, un vero valore aggiunto in una zona così richiesta. La assicura un'ottima efficienza energetica, contribuendo a ridurre i costi di gestione. Non perdere l'opportunità di vivere in un appartamento che unisce eleganza, comfort e praticità, Contattaci per maggiori informazioni e per organizzare una visita. Disponibile anche un' altra unità immobiliare con giardino privato. Consegna fine Luglio 2026 con possibilità di scelta delle finiture. Le immagini sono a carattere dimostrativo a RIF. CM541MP TEL. 335455001 www.immobiliareilfiorino.it EPI: 91,00 kwh/m2 anno







