Valutazione immobiliare indipendente, accurata e gratuita
Appartamento in vendita a Firenze in zona Ponte a Ema a 898.000 € (cod.65012927)
Caasa non ha sufficienti informazioni per commentare l'appartamento a Firenze in zona Ponte a Ema - 65012927.
Analisi immobiliare
I dati in posseso di Caasa per quest'immobile sono insufficienti, inaffidabili o contraddittori per proporre un'analisi attendibile.
Mercato immobiliare a Firenze
Per quanto riguarda più in generale la città di Firenze, sono presenti al momento ben oltre 5.000 annunci per
appartamenti in vendita (quasi il 40% dell'intera provincia)
e il maggior numero di annunci per questa tipologia sono relativi alla zona di Centro Storico, mentre la zona di Ponte a Ema risulta molto meno attiva considerando il numero di annunci presenti.
La richiesta media nella zona dove sorge l'appartamento (Ponte a Ema) è pari a
4.785 €/m², molto vicina ai valori della zona Porta Romana che sono i più alti della città .
La dinamica dei prezzi in tutta la città mostra che negli ultimi 6 mesi, i prezzi per appartamenti in vendita sono
sostanzialmente stabili (+0,14%).
NOVITÀ Il risultato che vedi dipende dai dati che siamo riusciti ad estrarre dall'annuncio: ottieni una stima più accuranta di questo immobile, inserendo dati più precisi.
N.B. L'Opinione di Caasa® è un servizio sperimentale realizzato tramite tecniche di Intelligenza Artificiale, fornito senza alcuna garanzia di correttezza e completezza. Leggi il disclaimer o segnalaci un problema.
IMMAGINI
IN SINTESI
PROPOSTO DA:
Living Luxury Real Estate
Via del cornocchio, 19, Barberino di Mugello (FI)
DESCRIZIONE
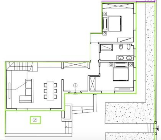
con posto auto con giardino con cucina abitabile
PONTE A EMA - Proponiamo in vendita un esclusivo appartamento DI MQ 132, situato in una splendida villa, in contesto signorile, in zona Firenze Sud. La proprietà si distingue per gli ampi spazi interni ed esterni, ideali per chi cerca una soluzione abitativa di alto livello immersa nel verde, pur rimanendo comoda ai servizi. Caratteristiche Principali: 3 CAMERE DA LETTO 2 BAGNI SOGGIORNO LUMINOSO CUCINA ABITABILE A VISTA Esterni: GIARDINO PRIVATO: 416 mq, ampio spazio verde. POSTO AUTO Punti di Forza: Contesto signorile in villa. Ampi spazi esterni esclusivi. Posizione privilegiata a Firenze Sud. Non perdere l'occasione di vivere in un contesto esclusivo con la libertà di una casa indipendente! Contattaci per una visita! Classe Energetica: G



