Valutazione immobiliare indipendente, accurata e gratuita
Appartamento in vendita a Firenze in zona Le Cure a 1.150.000 € (cod.64f325bd)
Caasa non ha sufficienti informazioni per commentare l'appartamento in vendita a Firenze in zona Le Cure - 64f325bd.
Analisi immobiliare
I dati in posseso di Caasa per quest'immobile sono insufficienti, inaffidabili o contraddittori per proporre un'analisi attendibile.
Mercato immobiliare a Firenze
Per quanto riguarda più in generale la città di Firenze, sono presenti al momento ben oltre 10.000 annunci per
appartamenti in vendita (quasi la metà dell'intera provincia)
e il maggior numero di annunci per questa tipologia sono relativi alla zona di Centro Storico, mentre la zona di Le Cure risulta molto meno attiva considerando il numero di annunci presenti.
La richiesta media nella zona dove sorge l'appartamento (Le Cure pressi Via Trieste) è pari a
4.865 €/m², molto vicina ai valori della zona Porta Romana che sono i più alti della città .
Relativamente alla dinamica dei prezzi, possiamo dire che negli ultimi 6 mesi i prezzi medi in tutta la città per appartamenti in vendita sono
sostanzialmente stabili (+0,14%).
NOVITÀ Il risultato che vedi dipende dai dati che siamo riusciti ad estrarre dall'annuncio: ottieni una stima più accuranta di questo immobile, inserendo dati più precisi.
N.B. L'Opinione di Caasa® è un servizio sperimentale realizzato tramite tecniche di Intelligenza Artificiale, fornito senza alcuna garanzia di correttezza e completezza. Leggi il disclaimer o segnalaci un problema.
IMMAGINI
IN SINTESI
DESCRIZIONE
con terrazza con cantina con posto auto con giardino con garage con cucina abitabile con caminetto
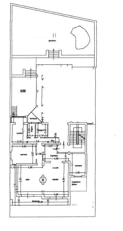
Nella parte alta di via Trieste, in contesto residenziale, si vende intero piano di villa bifamiliare. L'elegante appartamento originario è già diviso in due unità facilmente riunibili, libero ed esposto sui 4 lati è molto luminoso e tranquillo. I due appartamenti sono così composti: appartamento "A" ampio ingresso, salone triplo con camino e terrazzo, ingresso 2 ampie camere, cucina abitabile con accesso diretto al giardino (attualmente chiuso ma ripristinabile), 2 bagni finestrati. appartamento "B": ingresso cucina abitabile, salone doppio, piccola veranda, due bagni, 2 camere. Il grande giardino è diviso in comodo resede e in un romantico spazio verde. Al piano terra si trovano due ampie cantine a livello del giardino e sottostanti gli appartamenti. L'ampio garage di 29 mq consente l'accesso di 2 macchine. L'immobile per le sue caratteristiche si adatta sia ad un unico nucleo famigliare che a due oppure può essere un'ottima soluzione per chi vuole mettere a reddito una o entrambe le unità abitative. Hai una casa da vendere? Siamo pronti a proporla alla nostra ampia rete di Clienti qualificati, già pronti ad acquistare. Ti offriamo una valutazione gratuita ed un supporto professionale ed etico in ogni fase della vendita. E per ogni trattativa conclusa, pianteremo un albero a tuo nome. Seguici sui nostri social: instagram: @dimoretica Tik tok: @dimoretica Classe Energetica: G

