Valutazione immobiliare indipendente, accurata e gratuita

L'Opinione di Caasa® per l'appartamento in vendita a Firenze in zona Campo di Marte a 375.000 € (cod.64f1ead4)

Secondo Caasa, per l'appartamento a Firenze in zona Campo di Marte, la richiesta di 375.000 € è equilibrata rispetto agli annunci simili.

Analisi immobiliare
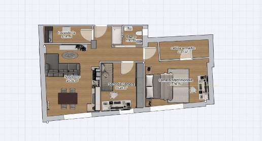
L'appartamento, situato nei pressi di Viale Giuseppe Mazzini nella zona OMI B2, è proposto in vendita (da LA MERIDIANA IMMOBILIARE) a 375.000 € per una superficie commerciale di 70 m² e quindi ad un prezzo per metro quadrato pari a 5357 €/m² .
Questo valore è perfettamente allineato a quello stimato da Caasa per immobili in vendita simili per tipologia e caratteristiche e localizzati nella stessa zona OMI, che è compreso tra 5.041 €/m² e 5.366 €/m². Grazie alla conoscenza con buona approssimazione della localizzazione dell'immobile, è stato possibile utilizzare come raffronto i dati medi elaborati esattamente nella zona OMI di appertenenza (LUNGARNO - DONATELLO - BECCARIA - LIBERTA) per appartamenti (da 3.735 €/m² a 5.350 €/m²) e per trivani (da 4.205 €/m² a 5.670 €/m²). Anche se Caasa non è riuscita a determinare la classe energetica, ad affinare la stima hanno contribuito anche lo stato dell'immobile (di recente ristrutturazione) e la presenza di alcune caratteristiche significative come la disponibilità di una cantina o il posto auto. Per queste ragioni l'intervallo dei valori accettabili per l'offerta è relativamente limitato.

Mercato immobiliare a Firenze
Per quanto riguarda più in generale la città di Firenze, sono presenti al momento ben oltre 5.000 annunci per appartamenti in vendita (quasi il 40% dell'intera provincia) e il maggior numero di annunci per questa tipologia sono relativi alla zona di Centro Storico, mentre nella zona di Campo di Marte è presente un numero significativamente inferiore di annunci.
La richiesta media nella zona dove sorge l'appartamento (Campo di Marte pressi Viale Giuseppe Mazzini) è pari a 4.580 €/m², molto vicina ai valori della zona Centro San Niccolò che sono i più alti della città .
Per quanto riguarda la dinamica dei prezzi, negli ultimi 6 mesi i prezzi medi in tutta la città per appartamenti in vendita sono sostanzialmente stabili (+0,14%).

NOVITÀ Il risultato che vedi dipende dai dati che siamo riusciti ad estrarre dall'annuncio: ottieni una stima più accuranta di questo immobile, inserendo dati più precisi.

N.B. L'Opinione di Caasa® è un servizio sperimentale realizzato tramite tecniche di Intelligenza Artificiale, fornito senza alcuna garanzia di correttezza e completezza. Leggi il disclaimer o segnalaci un problema.

IMMAGINI

IN SINTESI

Prezzo:
375.000 €
Superficie:
70 m²
Prezzo al m²:
5357 €/m²
Piano:
Bagni:
1
Classe energetica:
n.d.
Città:
Firenze (FI)
Zona OMI:
B2 (LUNGARNO - DONATELLO - BECCARIA - LIBERTA)
Pubblicato:
mer 15 ottobre 2025

PROPOSTO DA:

logo LA MERIDIANA IMMOBILIARE

LA MERIDIANA IMMOBILIARE

Viale g.b. Morgagni 12/r, Firenze (FI)

Vai ai contatti

DESCRIZIONE

di recente ristrutturazione con cantina di recente ristrutturazione con posto auto con termocondizionamento con angolo cottura con riscaldamento autonomo

FIRENZE - nei pressi dei Viali In contesto comodo e ben servito, proponiamo in vendita appartamento completamente ristrutturato posto al primo piano. L'immobile si apre sulla zona giorno con angolo cottura open space, ampio ripostiglio/lavanderia, due camere da letto di cui una dotata di guardaroba e infine un bagno finestrato. Impianto di riscaldamento autonomo e aria condizionata, basse spese condominiali. A completare la proprietà un comodo posto auto privato. SI ACQUISTA DA SOCIETA'. PRONTA CONSEGNA Classe Energetica: C

  • immobiliare.it
  • yescasa.it
  • risorseimmobiliari.it