Valutazione immobiliare indipendente, accurata e gratuita
L'Opinione di Caasa® per l'appartamento in vendita a Firenze a 420.000 € (cod.64ee82fe)
Secondo Caasa, per l'appartamento in vendita a Firenze, la richiesta di 420.000 € è significativamente svantaggiosa rispetto agli annunci simili.
Analisi immobiliare
L'appartamento, situato nella zona OMI C3, è proposto in vendita a
420.000 € per una
superficie commerciale di
80 m² e quindi ad un prezzo per metro quadrato pari a
5250 €/m²
.
Questo prezzo
è meno vantaggioso di quello stimato da Caasa per immobili in vendita simili per tipologia e caratteristiche e localizzati nella stessa zona OMI, che è compreso tra
4.527 €/m² e
4.796 €/m².
Grazie alla conoscenza con buona approssimazione della localizzazione dell'immobile, è stato possibile utilizzare come raffronto i dati medi elaborati esattamente nella zona OMI di appertenenza (DALMAZIA - ROMITO). Anche se Caasa non è riuscita a determinare la classe energetica, ad affinare la stima hanno contribuito anche lo stato dell'immobile (di nuova costruzione) e la presenza di alcune caratteristiche significative come il posto auto. Per queste ragioni l'intervallo dei valori accettabili per l'offerta è relativamente limitato.
Mercato immobiliare a Firenze
Per quanto riguarda più in generale la città di Firenze, sono presenti al momento ben oltre 5.000 annunci per
appartamenti in vendita (quasi il 40% dell'intera provincia)
e il maggior numero di annunci per questa tipologia sono relativi alla zona di Centro Storico.
Possiamo inoltre considerare che in tutta la città negli ultimi 6 mesi, i prezzi per appartamenti in vendita sono
sostanzialmente stabili (+0,14%).
NOVITÀ Il risultato che vedi dipende dai dati che siamo riusciti ad estrarre dall'annuncio: ottieni una stima più accuranta di questo immobile, inserendo dati più precisi.
N.B. L'Opinione di Caasa® è un servizio sperimentale realizzato tramite tecniche di Intelligenza Artificiale, fornito senza alcuna garanzia di correttezza e completezza. Leggi il disclaimer o segnalaci un problema.
IMMAGINI
IN SINTESI
PROPOSTO DA:
ITALIANA IMMOBILIARE SPA - IMMOBILSTATUTO SRL
DESCRIZIONE
di nuova costruzione di recente ristrutturazione con posto auto con angolo cottura di nuova costruzione con cortile
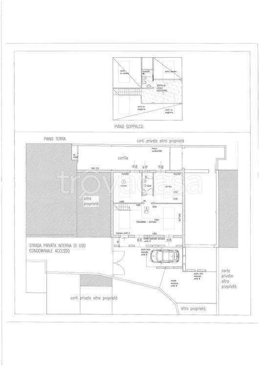
Al piano terra, con accesso carrabile e pedonale in strada privata, in fase di completa trasformazione e ristrutturazione di un edificio industriale, proponiamo in vendita ampio quattro vani su due livelli. Al piano terra, dal resede pedonale esclusivo, si accede in una luminosa ed ampia zona living suddivisa funzionalmente in soggiorno / angolo cottura che regala, con le due porte finestre e i due lucernari a tetto, un ambiente luminoso ed accogliente. Due camere matrimoniali di ampia metratura, affacciano sul cortile retrostante di circa 35 mq con ulteriori porte finestre. Il bagno, finestrato, conclude la distribuzione al piano terra. Dal vano giorno, si accede, tramite scala interna, all' ulteriore vano soppalcato adibito a locale accessorio/terza camera/studio con bagno. Completa la proprietà il posto auto esclusivo, adiacente il resede di ingresso. Le immagini sono render a carattere puramente dimostrativo Soluzione ideale per chi è alla ricerca di una residenza funzionale o di un'opportunità di investimento essendo ubicato in una zona residenziale tranquilla ma al contempo comoda a tutti i principali servizi e alle attività commerciali di vicinato che contribuiscono a valorizzare ulteriormente l'area. Contattaci subito al numero 055 4369593 per fissare una visita

