Valutazione immobiliare indipendente, accurata e gratuita

Casa indipendente in vendita a Firenze in zona Isolotto a 368.000 € (cod.64ee0194)

Caasa non ha sufficienti informazioni per commentare la casa indipendente a Firenze in zona Isolotto - 64ee0194.

Analisi immobiliare
I dati in posseso di Caasa per quest'immobile sono insufficienti, inaffidabili o contraddittori per proporre un'analisi attendibile.
Mercato immobiliare a Firenze
Per quanto riguarda più in generale la città di Firenze, sono presenti al momento ben oltre 5.000 annunci per case indipendenti in vendita (meno di un terzo dell'intera provincia) e il maggior numero di annunci per questa tipologia sono relativi alla zona di Centro Storico, mentre la zona di Isolotto risulta molto meno attiva considerando il numero di annunci presenti.
La richiesta media nella zona dove sorge la casa indipendente (Isolotto) è pari a 3.980 €/m², non troppo distante dai valori medi cittadini per case indipendenti in vendita.
Per quanto riguarda la dinamica dei prezzi, negli ultimi 6 mesi i prezzi medi in tutta la città per case indipendenti in vendita sono in forte calo (-14,44%).

NOVITÀ Il risultato che vedi dipende dai dati che siamo riusciti ad estrarre dall'annuncio: ottieni una stima più accuranta di questo immobile, inserendo dati più precisi.

N.B. L'Opinione di Caasa® è un servizio sperimentale realizzato tramite tecniche di Intelligenza Artificiale, fornito senza alcuna garanzia di correttezza e completezza. Leggi il disclaimer o segnalaci un problema.

IMMAGINI

IN SINTESI

Prezzo:
368.000 €
Superficie:
113 m²
Prezzo al m²:
3256 €/m²
Piano:
n.d.
Bagni:
2
Classe energetica:
n.d.
Città:
Firenze (FI)
Zona OMI:
D21 (ARGINGROSSO - SAN BARTOLO A CINTOIA)
Indirizzo:
Aggiornato:
sab 11 ottobre 2025

PROPOSTO DA:

logo FASI IMMOBILIARE

FASI IMMOBILIARE

Via Di San Romano 7/a, Firenze (FI)

Vai ai contatti

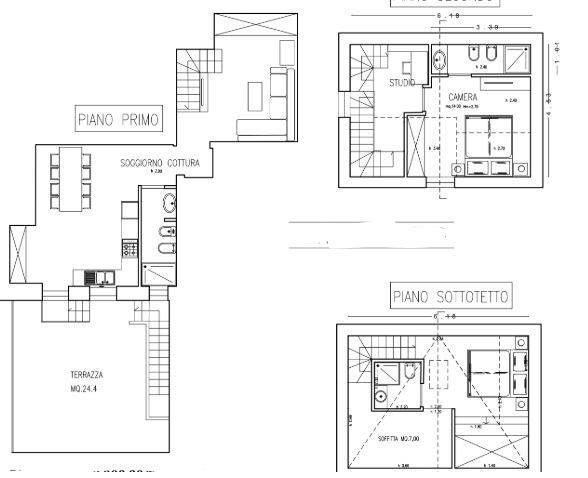
DESCRIZIONE

di recente ristrutturazione con terrazza di recente ristrutturazione con posto auto con giardino con garage

ISOLOTTO VILLA VOGEL PRESSI proponiamo immobile di circa 105 mq/sul, con ACCESSO INDIPENDENTE posto al piano primo E disposto su più livelli , finemente e completamente RISTRUTTURATO , IN CONTESTO SILENZIOSO E NEL VERDE e così composto: ampio soggior […]

  • immobiliare.it