Valutazione immobiliare indipendente, accurata e gratuita
L'Opinione di Caasa® per l'appartamento in affitto a Firenze in zona Centro Duomo a 2.950 € mese (cod.65a40311)
Secondo Caasa, per l'appartamento a Firenze in zona Centro Duomo, la richiesta di 2.950 € mese è significativamente svantaggiosa rispetto agli annunci simili.
Analisi immobiliare
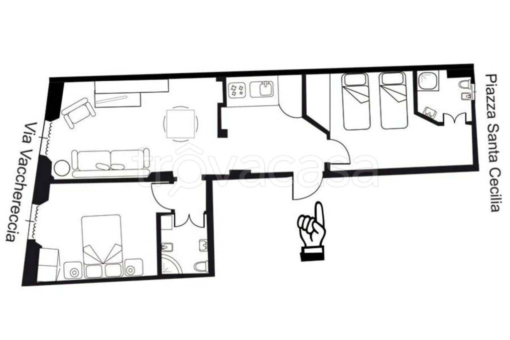
L'appartamento, situato vicino a Piazza della Repubblica nella zona OMI B5, è proposto in affitto a
2.950 € mese per una
superficie commerciale di
80 m² e quindi ad un prezzo per metro quadrato pari a
36,9 €/m²
.
Tale prezzo
è meno conveniente di quello stimato da Caasa per immobili in affitto simili per tipologia e caratteristiche e localizzati nella stessa zona OMI, che è compreso tra
28 €/m² mese e
29,8 €/m² mese.
Grazie alla conoscenza con buona approssimazione della localizzazione dell'immobile, è stato possibile utilizzare come raffronto i dati medi elaborati esattamente nella zona OMI di appertenenza (CENTRO STORICO (SIGNORIA - DUOMO - PITTI - SAN NICCOLO)) per appartamenti (da 20,1 €/m² mese a 30,9 €/m² mese) e per trivani (da 19,1 €/m² mese a 28,9 €/m² mese). Anche se Caasa non è riuscita a determinare la classe energetica, ad affinare la stima hanno contribuito anche lo stato dell'immobile (di recente ristrutturazione) e la presenza di alcune caratteristiche significative come l'arredamento, la presenza dell'ascensore o la climatizzazione. In virtù di queste considerazioni i valori accettabili per l'offerta costituiscono un intervallo relativamente limitato.
Mercato immobiliare a Firenze
Per quanto riguarda più in generale la città di Firenze, sono presenti al momento ben oltre 5.000 annunci per
appartamenti in affitto (oltre l'80% dell'intera provincia)
e il maggior numero di annunci per questa tipologia sono relativi alla zona di Centro Santa Croce, ma anche la zona di Centro Duomo è molto attiva dal punto di vista immobiliare.
La richiesta media nella zona dove sorge l'appartamento (Centro Duomo pressi Piazza della Repubblica) è pari a
25,7 €/m² mese, molto vicina ai valori della zona Centro San Niccolò che sono i più alti della città .
Relativamente alla dinamica dei prezzi, possiamo dire che negli ultimi 6 mesi i prezzi medi in tutta la città per appartamenti in affitto sono
sostanzialmente stabili (+0,77%).
NOVITÀ Il risultato che vedi dipende dai dati che siamo riusciti ad estrarre dall'annuncio: ottieni una stima più accuranta di questo immobile, inserendo dati più precisi.
N.B. L'Opinione di Caasa® è un servizio sperimentale realizzato tramite tecniche di Intelligenza Artificiale, fornito senza alcuna garanzia di correttezza e completezza. Leggi il disclaimer o segnalaci un problema.
IMMAGINI
IN SINTESI
DESCRIZIONE
di recente ristrutturazione con arredamento di recente ristrutturazione con termocondizionamento con ascensore di nuova costruzione con angolo cottura con riscaldamento autonomo edificio storico con climatizzazione
ITA] Disponibile da: 16/06/2026 Mensilità minime prenotabili: 1 Mensilità massime prenotabili: 12 Per prenotare l'annuncio clicca sul bottone "Prenota Qui" [ENG] Available from: 16/06/2026 Minimum months rental: 1 Maximum months rental: 12 To book the listing click on the button 'Book Here' [ITA] Appartamento nuovo e stupendo situato a Firenze in zona Duomo. Ideale per affitti di breve periodo. Può alloggiare fino a 4 persone, ha 2 camere da letto e 2 bagni completi. Situato al secondo piano, con ascensore ( dieci scalini per raggiungerlo), di un palazzo storico collocato in Vicolo de' Malespini, proprio dietro Piazza della Signoria. La zona è una delle più ricercate di Firenze e il palazzo è circondato dai monumenti più importanti di Firenze. Appartamento con 2 camere da letto in stile moderno misto classico (80 mq) può ospitare fino a 4 persone ed ha 2 bagni. L'appartamento è stato completamente rinnovato, ristrutturato con gusto ed è dotato di aria condizionata. La proprietà comprende una zona giorno arredata con un tavolo da pranzo in cristallo nero (4-6 persone) un divano in pelle bianca, TV LCD, stereo hi-fi, e un attrezzato e funzionale angolo cottura, dotato di un forno tradizionale, frigo / freezer. La zona notte comprende due camere da letto, una con letto matrimoniale e l'altra con due letti singoli, entrambe complete di bagno en-suite con doccia. Riscaldamento: autonomo. Aria condizionata: uno split in salotto e uno in ogni camera da letto. [ENG] New and wonderful apartment located in Florence in the Duomo area. It is ideal for short-term rentals. It can comfortably accommodate up to 4 people and has 2 bedrooms and 2 complete bathrooms. Situated on the second floor, with an elevator ( ten steps to reach the elevator), of a building in Vicolo de' Malespini, right behind Piazza Della Signoria. The area is one of the most renowned in Florence, and as soon as the guests are outside the house they find themselves immersed in the most authentic part of Florence: full of stores, delicious restaurants[…]

