Valutazione immobiliare indipendente, accurata e gratuita
Casa indipendente in vendita a Fiesole in zona Caldine a 680.000 € (cod.654a8b62)
Caasa non ha sufficienti informazioni per commentare la casa indipendente a Fiesole in zona Caldine - 654a8b62.
Analisi immobiliare
I dati in posseso di Caasa per quest'immobile sono insufficienti, inaffidabili o contraddittori per proporre un'analisi attendibile.
Mercato immobiliare a Fiesole
Per quanto riguarda più in generale il comune di Fiesole, sono presenti al momento più di 200 annunci per
case indipendenti in vendita (meno del 5% dell'intera provincia)
e il maggior numero di annunci per questa tipologia sono relativi alla zona di Compiobbi, ma anche la zona di Caldine è molto attiva dal punto di vista immobiliare.
La richiesta media nella zona dove sorge la casa indipendente (Caldine) è pari a
2.885 €/m² che la rende la più economica del comune .
Possiamo inoltre considerare che in tutto il comune negli ultimi 6 mesi, i prezzi per case indipendenti in vendita sono
in calo (-4,09%).
NOVITÀ Il risultato che vedi dipende dai dati che siamo riusciti ad estrarre dall'annuncio: ottieni una stima più accuranta di questo immobile, inserendo dati più precisi.
N.B. L'Opinione di Caasa® è un servizio sperimentale realizzato tramite tecniche di Intelligenza Artificiale, fornito senza alcuna garanzia di correttezza e completezza. Leggi il disclaimer o segnalaci un problema.
IMMAGINI
IN SINTESI
PROPOSTO DA:
Sarpi 1
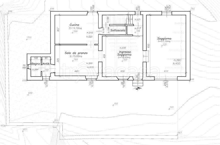
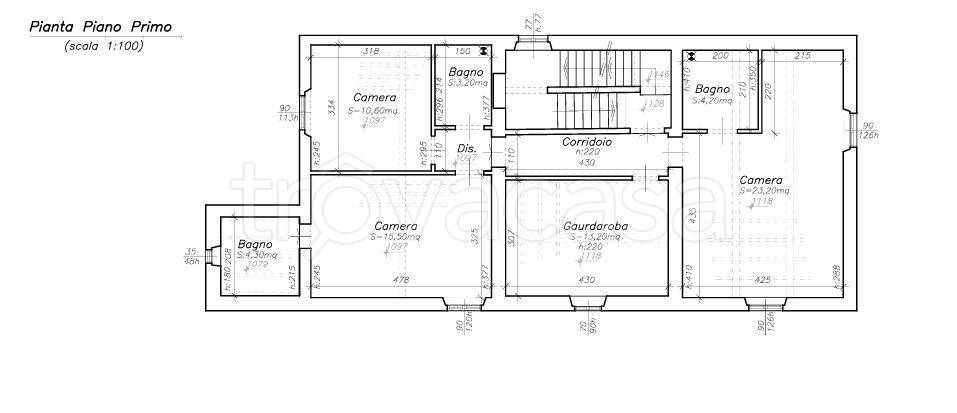
DESCRIZIONE
da ristrutturare con giardino con posto auto con cantina con garage da ristrutturare
Caldine pressi, in posizione collinare dominante casa colonica completamente da ristrutturare disposta su tre livelli fuori terra oltre cantina al piano interrato. Fienile attualmente utilizzato come autorimessa. Terreno di proprietà di 15000mq. Stupenda posizione con vista sulla vallata e scorcio anche sul centro di Firenze . L'immobile necessita di ristrutturazione completa


