Valutazione immobiliare indipendente, accurata e gratuita
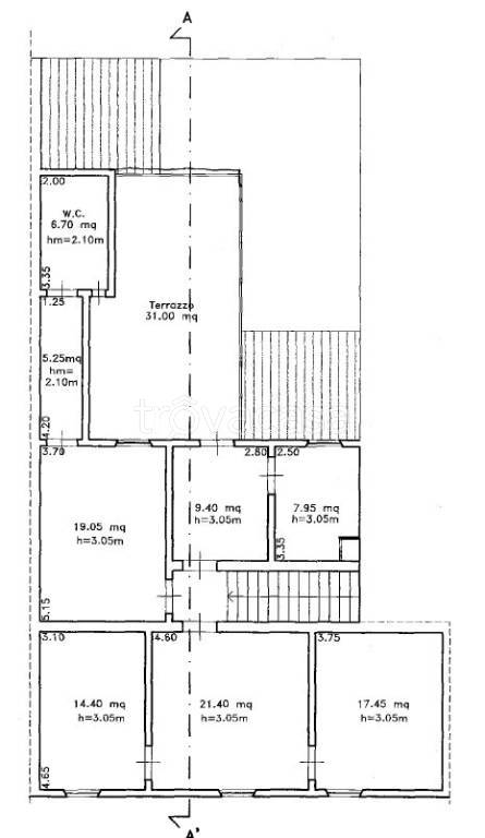
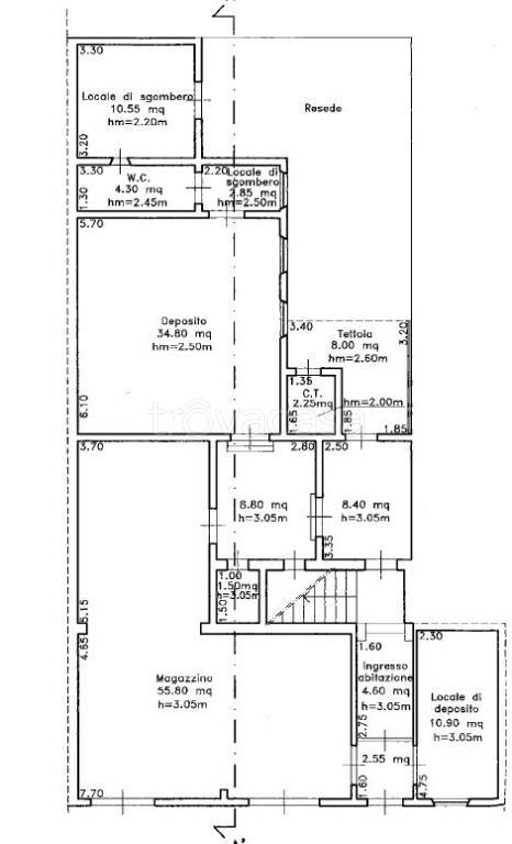
Casa indipendente in vendita ad Empoli in zona Marcignana a 210.000 € (cod.65a06f78)
Caasa non ha sufficienti informazioni per commentare la casa indipendente ad Empoli in zona Marcignana - 65a06f78.
Analisi immobiliare
I dati in posseso di Caasa per quest'immobile sono insufficienti, inaffidabili o contraddittori per proporre un'analisi attendibile.
Mercato immobiliare ad Empoli
Per quanto riguarda più in generale la città di Empoli, sono presenti al momento ben oltre mille annunci per
case indipendenti in vendita (meno del 10% dell'intera provincia)
e il maggior numero di annunci per questa tipologia sono relativi alla zona di Centro Storico, mentre la zona di Marcignana risulta molto meno attiva considerando il numero di annunci presenti.
La richiesta media nella zona dove sorge la casa indipendente (Marcignana) è pari a
1.825 €/m², molto vicina ai valori della zona Ponzano che sono i più alti della città .
Per quanto riguarda la dinamica dei prezzi, negli ultimi 6 mesi i prezzi medi in tutta la città per case indipendenti in vendita sono
sostanzialmente stabili (+0,76%).
NOVITÀ Il risultato che vedi dipende dai dati che siamo riusciti ad estrarre dall'annuncio: ottieni una stima più accuranta di questo immobile, inserendo dati più precisi.
N.B. L'Opinione di Caasa® è un servizio sperimentale realizzato tramite tecniche di Intelligenza Artificiale, fornito senza alcuna garanzia di correttezza e completezza. Leggi il disclaimer o segnalaci un problema.

