Valutazione immobiliare indipendente, accurata e gratuita
L'Opinione di Caasa® per l'appartamento in vendita ad Empoli in zona Centro Storico a 165.000 € (cod.65527110)
Secondo Caasa, per l'appartamento ad Empoli in zona Centro Storico, la richiesta di 165.000 € è significativamente svantaggiosa rispetto agli annunci simili.
Analisi immobiliare
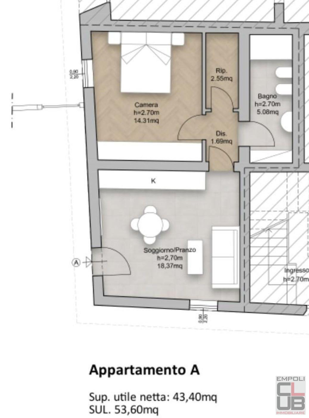
L'appartamento, situato nei pressi di Piazza Guido Guerra nella zona OMI B1, è proposto in vendita (da EMPOLI CLUB IMMOBILIARE DI SIMONE FRANCIONI) a
165.000 € per una
superficie commerciale di
45 m² e quindi ad un prezzo per metro quadrato pari a
3666 €/m²
.
Questo valore
è significativamente più alto di quello stimato da Caasa per immobili in vendita simili per tipologia, caratteristiche, classe energetica e localizzati nella stessa zona OMI, che è compreso tra
3.044 €/m² e
3.272 €/m².
La conoscenza con buona approssimazione della localizzazione dell'immobile ha consentito di utilizzare come raffronto i dati medi elaborati esattamente nella zona OMI di appertenenza (CENTRALE) per appartamenti (da 1.855 €/m² a 3.460 €/m²) e per case semindipendenti (da 1.815 €/m² a 3.525 €/m²). Inoltre, Caasa ha potuto affinare la stima anche con la conoscenza della classe energetica (A+) oltre che dello stato dell'immobile (di nuova costruzione) e di alcune caratteristiche significative come la disponibilità di una cantina. Per queste ragioni è possibile considerare un intervallo di valori accettabili per l'offerta abbastanza limitato.
Mercato immobiliare ad Empoli
Per quanto riguarda più in generale la città di Empoli, sono presenti al momento ben oltre mille annunci per
appartamenti in vendita (meno del 10% dell'intera provincia)
e il maggior numero di annunci per questa tipologia sono relativi proprio alla zona di Centro Storico.
La richiesta media nella zona dove sorge l'appartamento (Centro Storico pressi Piazza Guido Guerra) è pari a
2.660 €/m², molto vicina ai valori della zona Ponzano che sono i più alti della città .
Per quanto riguarda la dinamica dei prezzi, negli ultimi 6 mesi i prezzi medi in tutta la città per appartamenti in vendita sono
in debole aumento (+1,88%).
NOVITÀ Il risultato che vedi dipende dai dati che siamo riusciti ad estrarre dall'annuncio: ottieni una stima più accuranta di questo immobile, inserendo dati più precisi.
N.B. L'Opinione di Caasa® è un servizio sperimentale realizzato tramite tecniche di Intelligenza Artificiale, fornito senza alcuna garanzia di correttezza e completezza. Leggi il disclaimer o segnalaci un problema.
IMMAGINI
IN SINTESI
DESCRIZIONE
di nuova costruzione con cantina di recente ristrutturazione di nuova costruzione con balcone con angolo cottura senza ascensore
EMPOLI - RIF. M/0573 - PIAZZA GUIDO GUERRA. IN PICCOLO EDIFICIO COMPOSTO DA POCHE UNITA' ABITATIVE, OGGETTO DI COMPLETA E RADICALE RISTRUTTURAZIONE CON OBIETTIVI DI CLASSIFICAZIONE ENERGETICA AMBIZIOSI. APPARTAMENTO BILOCALE IN RISTRUTTURAZIONE POSTO AL PIANO TERRA, CON INGRESSO INDIPENDENTE. Ingresso, soggiorno con angolo cottura, ripostiglio, disimpegno notte, camera da letto matrimoniale e servizio igienico. Il capitolato è di alto livello, con infissi a tenuta termica ed acustica, sistema di climatizzazione con pompa di calore inverter e fancoil, solai e mura coibentate, ed una previsione di finiture moderne in un oggetto ubicato alla perfezione (a due passi dal centro ma senza la schiavitù della ZCS). IDEALE PER INVESTIMENTO COME PER RESIDENZA PROPRIA. DISPONIBILI IN AGENZIA PLANIMETRIE E CAPITOLATO. Classe energetica PREVISTA: A3, 00 EURO 165.000,00










