Valutazione immobiliare indipendente, accurata e gratuita
Appartamento in vendita ad Empoli in zona Centro Storico a 165.000 € (cod.6514b902)
Caasa non ha sufficienti informazioni per commentare l'appartamento ad Empoli in zona Centro Storico - 6514b902.
Analisi immobiliare
I dati in posseso di Caasa per quest'immobile sono insufficienti, inaffidabili o contraddittori per proporre un'analisi attendibile.
Mercato immobiliare ad Empoli
Per quanto riguarda più in generale la città di Empoli, sono presenti al momento ben oltre mille annunci per
appartamenti in vendita (meno del 10% dell'intera provincia)
e il maggior numero di annunci per questa tipologia sono relativi proprio alla zona di Centro Storico.
La richiesta media nella zona dove sorge l'appartamento (Centro Storico pressi Piazza Guido Guerra) è pari a
2.610 €/m², molto vicina ai valori della zona Ponzano che sono i più alti della città .
Possiamo inoltre considerare che in tutta la città negli ultimi 6 mesi, i prezzi per appartamenti in vendita sono
in sostanziale aumento (+5,42%).
NOVITÀ Il risultato che vedi dipende dai dati che siamo riusciti ad estrarre dall'annuncio: ottieni una stima più accuranta di questo immobile, inserendo dati più precisi.
N.B. L'Opinione di Caasa® è un servizio sperimentale realizzato tramite tecniche di Intelligenza Artificiale, fornito senza alcuna garanzia di correttezza e completezza. Leggi il disclaimer o segnalaci un problema.
IMMAGINI
IN SINTESI
DESCRIZIONE
di recente ristrutturazione con cantina di recente ristrutturazione con angolo cottura
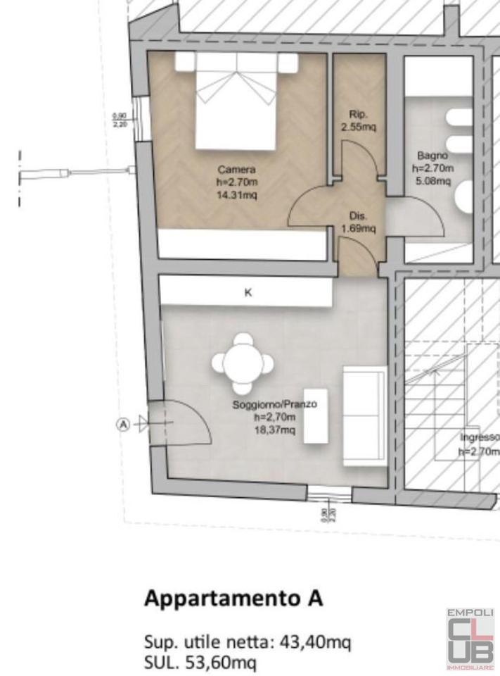
Cod.01144 Rif.Ag. M/0573 - EMPOLI - RIF. M/0573 - PIAZZA GUIDO GUERRA. IN PICCOLO EDIFICIO COMPOSTO DA POCHE UNITA' ABITATIVE, OGGETTO DI COMPLETA E RADICALE RISTRUTTURAZIONE CON OBIETTIVI DI CLASSIFICAZIONE ENERGETICA AMBIZIOSI. APPARTAMENTO BILOCALE IN RISTRUTTURAZIONE POSTO AL PIANO TERRA, CON INGRESSO INDIPENDENTE. Ingresso, soggiorno con angolo cottura, ripostiglio, disimpegno notte, camera da letto matrimoniale e servizio igienico. Il capitolato è di alto livello, con infissi a tenuta termica ed acustica, sistema di climatizzazione con pompa di calore inverter e fancoil, solai e mura coibentate, ed una previsione di finiture moderne in un oggetto ubicato alla perfezione (a due passi dal centro ma senza la schiavitù della ZCS). IDEALE PER INVESTIMENTO COME PER RESIDENZA PROPRIA. DISPONIBILI IN AGENZIA PLANIMETRIE E CAPITOLATO. Classe energetica PREVISTA: A3, 00 EURO 165.000,00









