Valutazione immobiliare indipendente, accurata e gratuita
Casa indipendente in vendita ad Empoli in zona Monterappoli a 490.000 € (cod.650f40fb)
Caasa non ha sufficienti informazioni per commentare la casa indipendente ad Empoli in zona Monterappoli - 650f40fb.
Analisi immobiliare
I dati in posseso di Caasa per quest'immobile sono insufficienti, inaffidabili o contraddittori per proporre un'analisi attendibile.
Mercato immobiliare ad Empoli
Per quanto riguarda più in generale la città di Empoli, sono presenti al momento ben oltre mille annunci per
case indipendenti in vendita (meno del 10% dell'intera provincia)
e il maggior numero di annunci per questa tipologia sono relativi alla zona di Centro Storico, mentre la zona di Monterappoli risulta molto meno attiva considerando il numero di annunci presenti.
La richiesta media nella zona dove sorge la casa indipendente (Monterappoli pressi Via Senese Romana) è pari a
1.800 €/m², molto vicina ai valori della zona Centro Storico che sono i più alti della città .
La dinamica dei prezzi in tutta la città mostra che negli ultimi 6 mesi, i prezzi per case indipendenti in vendita sono
in debole aumento (+1,75%).
NOVITÀ Il risultato che vedi dipende dai dati che siamo riusciti ad estrarre dall'annuncio: ottieni una stima più accuranta di questo immobile, inserendo dati più precisi.
N.B. L'Opinione di Caasa® è un servizio sperimentale realizzato tramite tecniche di Intelligenza Artificiale, fornito senza alcuna garanzia di correttezza e completezza. Leggi il disclaimer o segnalaci un problema.
IMMAGINI
IN SINTESI
PROPOSTO DA:
AGENZIA IMMOBILIARE RAG. ANTONELLA GHIZZANI
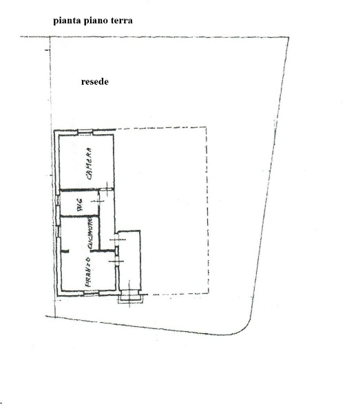
DESCRIZIONE
di recente costruzione con posto auto con garage di recente costruzione con balcone
EMPOLI - LOC. MOLIN NUOVO - CASA INDIPENDENTE - LIBERA SU QUATTRO LATI - Rif. 2/02039 - In prossimità della nuova viabilità, a cinque minuti da Empoli, bell'immobile libero su quattro lati e composto da grande bilocale con ingresso singolo, garage e stanza pluriuso; al piano primo ed al piano secondo ultimo due grandi appartamenti composti da doppio soggiorno, cucina-pranzo, tre camere e doppi servizi, balconi. Resede privato e due posti auto coperti. L'immobile si presenta in buono stato di manutenzione anche se con rifiniture dell'epoca, ideale per ospitare genitori e figli ognuno con la propria indipendenza. Si precisa che l'indirizzo presente non identifica l'esatta ubicazione dell'immobile questo al fine di tutelare la privacy e la riservatezza del venditore. - Rif. 2/0239 - EURO 490.000 tr








