Valutazione immobiliare indipendente, accurata e gratuita
L'Opinione di Caasa® per l'appartamento in vendita ad Empoli a 389.000 € (cod.65032152)
Secondo Caasa, per l'appartamento in vendita ad Empoli, la richiesta di 389.000 € è equilibrata rispetto agli annunci simili.
Analisi immobiliare
L'appartamento, situato nella zona OMI B1, è proposto in vendita a
389.000 € per una
superficie commerciale di
113 m² e quindi ad un prezzo per metro quadrato pari a
3442 €/m²
.
Questo prezzo
è in linea con quello stimato da Caasa per immobili in vendita simili per tipologia e caratteristiche e localizzati nella stessa zona OMI, che è compreso tra
3.214 €/m² e
3.517 €/m².
Grazie alla conoscenza con buona approssimazione della localizzazione dell'immobile, è stato possibile utilizzare come raffronto i dati medi elaborati esattamente nella zona OMI di appertenenza (CENTRALE). Anche se Caasa non è riuscita a determinare la classe energetica, ad affinare la stima hanno contribuito anche lo stato dell'immobile (di nuova costruzione) e la presenza di alcune caratteristiche significative come la presenza dell'ascensore, la disponibilità di una cantina o il posto auto. Per queste considerazioni l'intervallo dei valori accettabili per l'offerta è relativamente limitato.
Mercato immobiliare ad Empoli
Per quanto riguarda più in generale la città di Empoli, sono presenti al momento ben oltre mille annunci per
appartamenti in vendita (meno del 10% dell'intera provincia)
e il maggior numero di annunci per questa tipologia sono relativi alla zona di Centro Storico.
Possiamo inoltre considerare che in tutta la città negli ultimi 6 mesi, i prezzi per appartamenti in vendita sono
in sostanziale aumento (+5,42%).
NOVITÀ Il risultato che vedi dipende dai dati che siamo riusciti ad estrarre dall'annuncio: ottieni una stima più accuranta di questo immobile, inserendo dati più precisi.
N.B. L'Opinione di Caasa® è un servizio sperimentale realizzato tramite tecniche di Intelligenza Artificiale, fornito senza alcuna garanzia di correttezza e completezza. Leggi il disclaimer o segnalaci un problema.
IMMAGINI
IN SINTESI
DESCRIZIONE
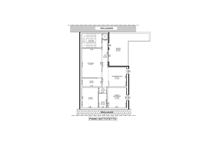
di nuova costruzione con posto auto con cantina con termocondizionamento di nuova costruzione con ascensore
Da Privato. Costo reale €. 265.000,00 Vendesi attico completamente personalizzabile in fase di ristrutturazione. Tetto in legno di nuova realizzazione con coibentazione in fibra di legno 16+4. Tetto ventilato. Impianto di riscaldamento e raffreddamento a pavimento con ventilazione meccanica controllata. Impianto solare termico per acqua calda sanitaria. Impianto fotovoltaico da circa 3 kw. Appartamento composto da soggiorno, cucina, camera matrimoniale, camera, due bagni e disimpegno. Consegna Febbraio 2026. Ascensore. Posto auto interno. Piccola cantina condominiale. Corte interna condominiale. Termosingolo. Superficie commerciale 113 mq. utile mq. 96,00 + lastrico solare mq. 33,00 Agevolazioni fiscali €. 124.000,00 in 10 anni





