Valutazione immobiliare indipendente, accurata e gratuita
Negozio in vendita ad Empoli in zona Avane (cod.64f54ad0)
Caasa non ha sufficienti informazioni per commentare il negozio in vendita ad Empoli in zona Avane - 64f54ad0.
Analisi immobiliare
I dati in posseso di Caasa per quest'immobile sono insufficienti, inaffidabili o contraddittori per proporre un'analisi attendibile.
Mercato immobiliare ad Empoli
Per quanto riguarda più in generale la città di Empoli, sono presenti al momento più di 300 annunci per
negozi in vendita (meno del 10% dell'intera provincia)
e il maggior numero di annunci per questa tipologia sono relativi alla zona di Centro Storico, mentre la zona di Avane risulta molto meno attiva considerando il numero di annunci presenti.
Vedi altre informazioni direttamente su
Mercato-Immobiliare.info
NOVITÀ Il risultato che vedi dipende dai dati che siamo riusciti ad estrarre dall'annuncio: ottieni una stima più accuranta di questo immobile, inserendo dati più precisi.
N.B. L'Opinione di Caasa® è un servizio sperimentale realizzato tramite tecniche di Intelligenza Artificiale, fornito senza alcuna garanzia di correttezza e completezza. Leggi il disclaimer o segnalaci un problema.
IMMAGINI
IN SINTESI
DESCRIZIONE
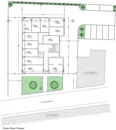
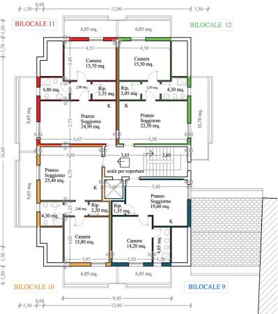
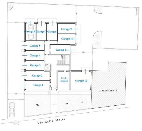
con posto auto con garage con terrazza
Empoli, pressi Ospedale loc. Avane, in centro abitato e vicino a tutti i servizi si vende area edificabile per civile abitazione o commerciale per un totale di un massimo di 765 mq di sul realizzabili oltre terrazze per 260 mq e garage per 229 mq, posti auto e accessori. Si garantisce, al momento della vendita, approvazione del progetto, che è personalizzabile: quello illustrato nelle foto, già approvato in passato dal Comune, è soltanto una delle tante opportunità realizzabili nell'area, come terratetti, palazzina su più livelli, negozi a piano terra e diverse altre soluzioni


